

*Plan may show available options and upgrades. Click to zoom. Scroll to zoom. Drag to pan.
Your Custom Home Floor Plan
Seymour B Floor Plan
4 Beds
2.5 Baths
2,538 Sq Ft
2 Cars
$0 Down - No Payments During Construction*
*With approved credit. No traditional construction loan required.
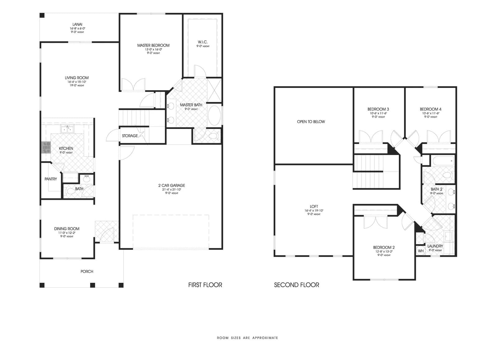
The Seymour-B floor plan is a beautifully orchestrated two-story home that offers a total of 2488 square feet of living space, expertly divided between communal areas and private retreats to accommodate a variety of lifestyles and activities.
The first-floor layout is designed for seamless living and entertaining, featuring a spacious living room that is perfect for gatherings or quiet evenings in. The adjoining dining room provides a scenic area for meals, with direct porch access for an indoor-outdoor dining experience. The kitchen, efficient and modern, includes a pantry for additional storage and is situated to allow for social cooking and interaction with family or guests.
The master bedroom suite on the first floor is a private sanctuary, with ample room for rest, a walk-in closet for ample storage, and an en suite master bath designed for relaxation. The suite also opens onto a lanai, offering a private outdoor space to enjoy the serenity of your surroundings.
Ascending to the second floor, the home continues to impress with three additional bedrooms, each offering personal space and comfort. A full bath serves these bedrooms, ensuring convenience for all. The loft adds a dynamic element to the home, open to the living room below, and can be utilized as a secondary family room, a play area, or a home office.
Completing the home’s floor plan is a practical two-car garage and generous outdoor living space, including a welcoming porch and a relaxing lanai, providing ample opportunities for enjoying the outdoors. The Seymour-B represents the ideal blend of open-plan living with the privacy of well-appointed bedrooms, making it an excellent choice for a family home that caters to both shared experiences and individual solitude.
Living Area
2,538 sq ft
Bedrooms
4
Bathrooms
2.5
Stories
2
Cars
2
Speak To Your New Custom Home Builder Today!
25+
Years Experience
3,000+
Homes Built
5
Office Locations
A+
BBB Rating
Make It Yours
Customize the Seymour B
Every floor plan is a starting point, not a box. Work directly with our design team to personalize every detail of the Seymour B to fit your land, your family, and your lifestyle - at a price that's clear from day one.
Cabinet styles and finishes
Flooring throughout
Countertops and backsplashes
Exterior colors and materials
Structural layout changes
Fixtures and hardware
Ceiling treatments
Porch and outdoor living
How It Works
Build the Seymour B in 5 Simple Steps
From free site evaluation to move-in day. One team, one price, one beautiful home.
01
Free Site Evaluation
We assess your land for build-readiness including soil, utilities, and access.
02
Choose Your Plan
Select the Seymour B or customize it. Bring your own plan too.
03
Get Clear Pricing
Transparent pricing with no hidden fees or surprises.
04
Build Begins
Our experienced team breaks ground with one dedicated point of contact.
05
Move In
Walk through your finished dream home and start making memories.
Take the Next Step
Get Details for the Seymour B
Tell us where you want to build and we'll match you with your local team.
Mortgage Calculator
*Estimate only. Does not include taxes and insurance. WAC.
$
$
%
Estimated Monthly Payment
$2,213/mo
Common Questions
Seymour B Floor Plan FAQ
Yes. Every Southwest Homes floor plan is a starting point. Work directly with our design team to personalize cabinet finishes, flooring, countertops, fixtures, exterior colors, and structural options. We adapt the Seymour B to fit your land, your family, and your lifestyle.
No - traditional construction loans require you to pay interest. We work with lenders who offer construction-to-permanent financing that simplifies this - often with $0 down and no payments and no interest until the build is complete. *WAC
Pricing depends on the floor plan, location, lot conditions, and customizations you choose. We provide transparent pricing with no hidden fees. Contact us for a personalized quote based on your specific plan and land.
Every home is different - the time frame changes from permit approval to move-in, depending on the plan size, site conditions, local permitting timelines, and even weather conditions. Your project manager will give you a specific schedule during the planning phase.
We typically serve a 100-mile radius around each of our offices in San Antonio, Corpus Christi, Canton TX, and Springdale AR. If you're unsure whether your land is in our service area, call your nearest office and we'll let you know right away.
Yes. Southwest Homes offers a Bring Your Own Plan option. If you have a design you love, our team can review it and provide pricing to build it on your land. Learn more about Bring Your Own Plan.
Ready to Build the Seymour B on Your Land?
No construction loan required. Transparent pricing. Free site evaluation. 25+ years and 3,000+ homes built.



