
Hillsboro C
3 Bed 2 Bath 2,051 sqft
View Plan

*Plan may show available options and upgrades. Click to zoom. Scroll to zoom. Drag to pan.
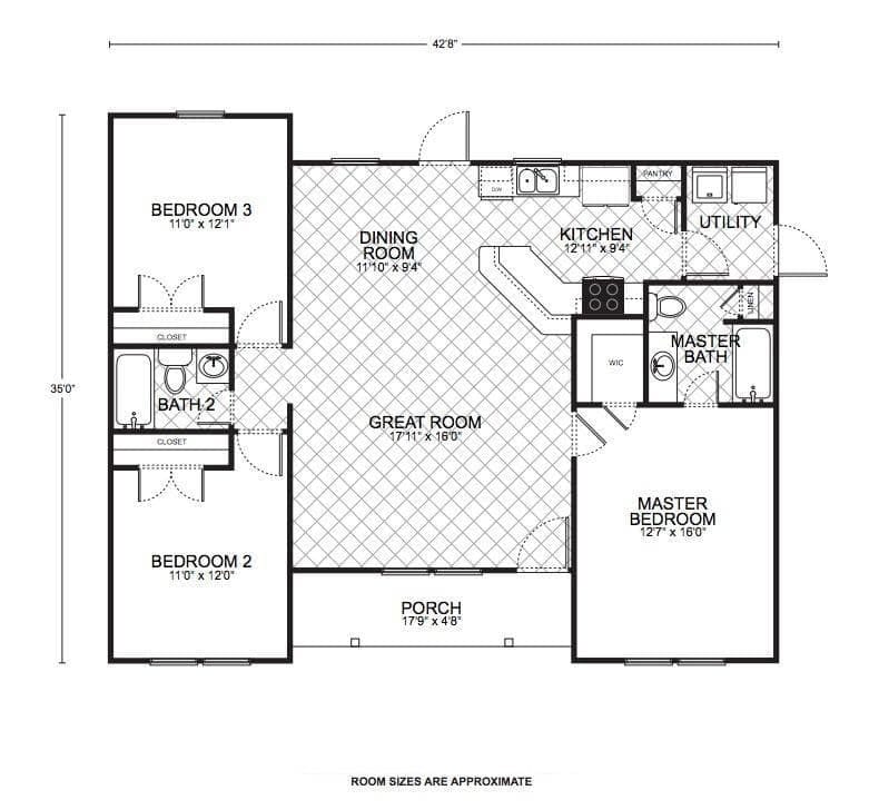
The Woodcrest floor plan is an efficient and inviting design that provides a comfortable living space, ideal for modern families or couples. The plan details a welcoming home with a sensible distribution of space.
Featuring a sizable great room at the heart of the home, it offers a perfect setting for relaxation and family gatherings. The dining room is conveniently located adjacent to the kitchen, facilitating easy and enjoyable mealtime experiences. The kitchen is equipped with essential appliances and a practical layout, including a utility area for added convenience.
The master bedroom is designed as a restful retreat with its own en suite master bath, creating a private haven within the home. Additional bedrooms are provided, offering ample space for family, guests, or a home office, with a second full bathroom easily accessible to support these rooms.
This floor plan also includes a porch, contributing to the home’s charm and providing a pleasant outdoor area for relaxation and entertainment. The living area and room sizes are thoughtfully proportioned to maximize comfort and livability within the home.
Every floor plan is a starting point, not a box. Work directly with our design team to personalize every detail of the Woodcrest to fit your land, your family, and your lifestyle - at a price that's clear from day one.
From free site evaluation to move-in day. One team, one price, one beautiful home.
We assess your land for build-readiness including soil, utilities, and access.
Select the Woodcrest or customize it. Bring your own plan too.
Transparent pricing with no hidden fees or surprises.
Our experienced team breaks ground with one dedicated point of contact.
Walk through your finished dream home and start making memories.
Tell us where you want to build and we'll match you with your local team.
*Estimate only. Does not include taxes and insurance. WAC.
No construction loan required. Transparent pricing. Free site evaluation. 25+ years and 3,000+ homes built.
Fill out the form below and your local builder rep will send you full pricing and specs.