

*Plan may show available options and upgrades. Click to zoom. Scroll to zoom. Drag to pan.
Your Custom Home Floor Plan
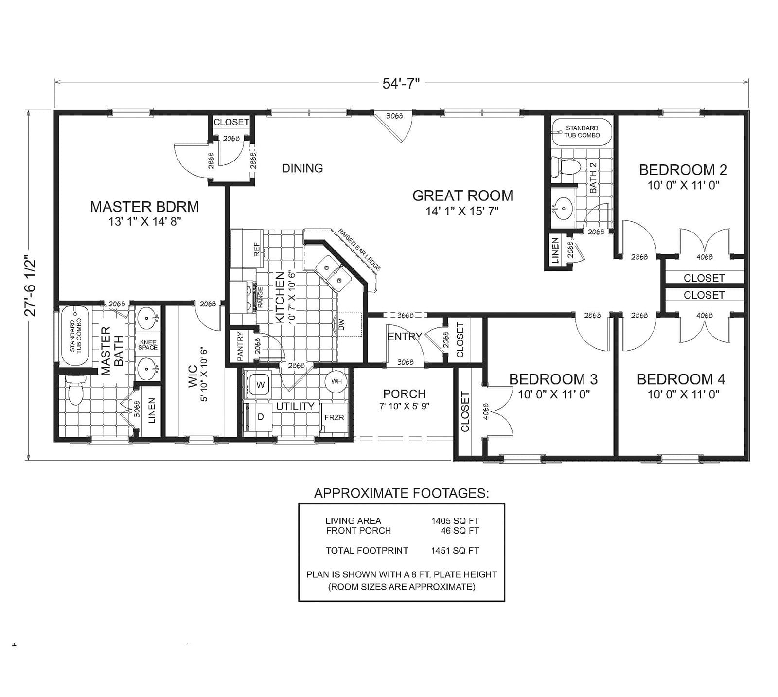
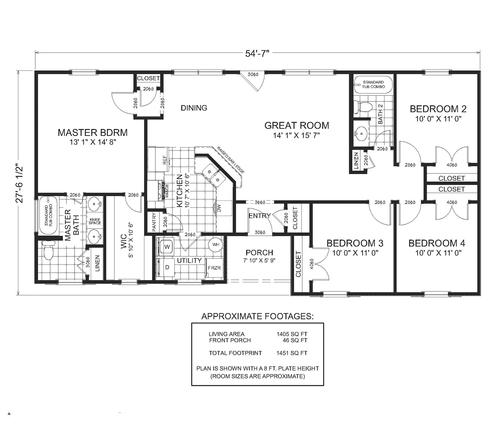
El Dorado Floor Plan
4 Beds
2 Baths
1,405 Sq Ft
$0 Down - No Payments During Construction*
*With approved credit. No traditional construction loan required.
The El Dorado floor plan offers a thoughtfully designed layout that combines modern efficiency with welcoming comfort. Spanning approximately 1,405 square feet of living space, this single-story home is ideal for growing families or those seeking a well-balanced design with room to relax and entertain.
At the heart of the home lies the open-concept great room, seamlessly connected to the dining area and kitchen. The kitchen’s convenient bar seating and corner pantry make it both stylish and practical, perfect for family gatherings or casual meals.
The master suite serves as a peaceful retreat, featuring a spacious bedroom, a luxurious en suite bath with double vanities, a soaking tub, and a separate shower. A large walk-in closet provides ample storage and easy access to the adjoining utility room for added convenience.
Three additional bedrooms are thoughtfully placed on the opposite side of the home, ensuring privacy for everyone. Each bedroom includes a generous closet, and they share a full bathroom with a standard tub and linen storage.
Additional highlights include a welcoming covered front porch, a dedicated utility room with washer and dryer space, and well-positioned closets throughout for optimized organization.
Compact yet remarkably efficient, The El Dorado delivers everything today’s homeowners desire-style, comfort, and smart design—all in a footprint that fits beautifully in any neighborhood or rural setting.
Living Area
1,405 sq ft
Bedrooms
4
Bathrooms
2
Stories
1
Speak To Your New Custom Home Builder Today!
25+
Years Experience
3,000+
Homes Built
5
Office Locations
A+
BBB Rating
Make It Yours
Customize the El Dorado
Every floor plan is a starting point, not a box. Work directly with our design team to personalize every detail of the El Dorado to fit your land, your family, and your lifestyle - at a price that's clear from day one.
Cabinet styles and finishes
Flooring throughout
Countertops and backsplashes
Exterior colors and materials
Structural layout changes
Fixtures and hardware
Ceiling treatments
Porch and outdoor living
How It Works
Build the El Dorado in 5 Simple Steps
From free site evaluation to move-in day. One team, one price, one beautiful home.
01
Free Site Evaluation
We assess your land for build-readiness including soil, utilities, and access.
02
Choose Your Plan
Select the El Dorado or customize it. Bring your own plan too.
03
Get Clear Pricing
Transparent pricing with no hidden fees or surprises.
04
Build Begins
Our experienced team breaks ground with one dedicated point of contact.
05
Move In
Walk through your finished dream home and start making memories.
Take the Next Step
Get Details for the El Dorado
Tell us where you want to build and we'll match you with your local team.
Mortgage Calculator
*Estimate only. Does not include taxes and insurance. WAC.
$
$
%
Estimated Monthly Payment
$2,213/mo
Common Questions
El Dorado Floor Plan FAQ
Yes. Every Southwest Homes floor plan is a starting point. Work directly with our design team to personalize cabinet finishes, flooring, countertops, fixtures, exterior colors, and structural options. We adapt the El Dorado to fit your land, your family, and your lifestyle.
No - traditional construction loans require you to pay interest. We work with lenders who offer construction-to-permanent financing that simplifies this - often with $0 down and no payments and no interest until the build is complete. *WAC
Pricing depends on the floor plan, location, lot conditions, and customizations you choose. We provide transparent pricing with no hidden fees. Contact us for a personalized quote based on your specific plan and land.
Every home is different - the time frame changes from permit approval to move-in, depending on the plan size, site conditions, local permitting timelines, and even weather conditions. Your project manager will give you a specific schedule during the planning phase.
We typically serve a 100-mile radius around each of our offices in San Antonio, Corpus Christi, Canton TX, and Springdale AR. If you're unsure whether your land is in our service area, call your nearest office and we'll let you know right away.
Yes. Southwest Homes offers a Bring Your Own Plan option. If you have a design you love, our team can review it and provide pricing to build it on your land. Learn more about Bring Your Own Plan.
Ready to Build the El Dorado on Your Land?
No construction loan required. Transparent pricing. Free site evaluation. 25+ years and 3,000+ homes built.



