

*Plan may show available options and upgrades. Click to zoom. Scroll to zoom. Drag to pan.
Your Custom Home Floor Plan
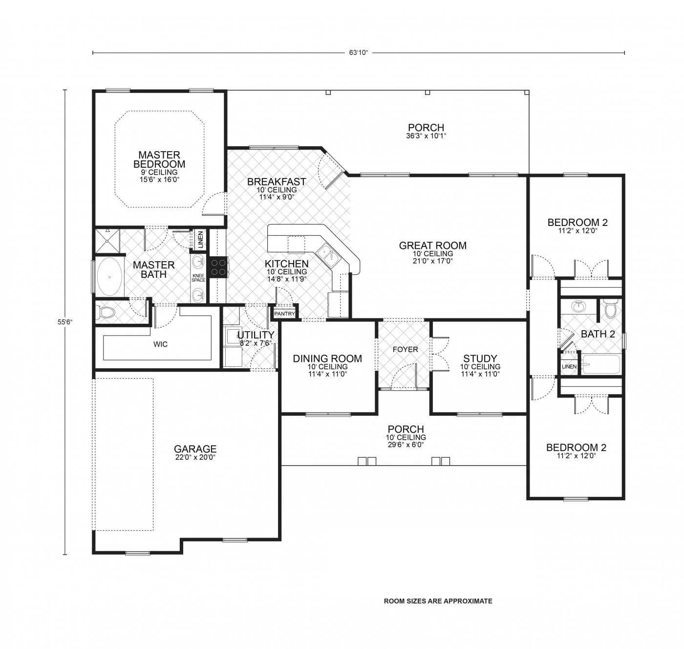
Hillsboro B Floor Plan
3 Beds
2 Baths
2,032 Sq Ft
2 Cars
$0 Down - No Payments During Construction*
*With approved credit. No traditional construction loan required.
The Hillsboro B floor plan is a beautifully designed space that marries practicality with modern elegance, perfect for anyone looking to build a custom home that caters to both entertaining and private living. The generous porch invites you into a welcoming foyer, which leads into a stunning great room with a soaring 10-foot ceiling, providing an airy and open space for gatherings and relaxation.
Adjacent to the great room, the kitchen stands as the heart of the home, complete with a walk-in pantry and a center island that overlooks the breakfast nook, ideal for casual dining and engaging conversations. For more formal occasions, the dining room offers a distinct space that promises to make every meal feel like a special event.
The master suite is a private retreat designed with a 9-foot ceiling to enhance the sense of spaciousness. It boasts a sizable master bath with a dual vanity, a walk-in closet, and ample storage. Across the home, two additional bedrooms are conveniently located with easy access to a full bathroom, providing comfortable accommodations for family or guests.
The study, with a 10-foot ceiling, adds an element of versatility to the floor plan, suitable for a home office, library, or additional guest room. The utility room is strategically placed for efficiency, leading out to the garage. With a living area of 2,032 square feet, this home is thoughtfully laid out to maximize both comfort and function, making the Hillsboro B an exceptional choice for your new custom home.
Living Area
2,032 sq ft
Bedrooms
3
Bathrooms
2
Stories
1
Cars
2
Speak To Your New Custom Home Builder Today!
25+
Years Experience
3,000+
Homes Built
5
Office Locations
A+
BBB Rating
Make It Yours
Customize the Hillsboro B
Every floor plan is a starting point, not a box. Work directly with our design team to personalize every detail of the Hillsboro B to fit your land, your family, and your lifestyle - at a price that's clear from day one.
Cabinet styles and finishes
Flooring throughout
Countertops and backsplashes
Exterior colors and materials
Structural layout changes
Fixtures and hardware
Ceiling treatments
Porch and outdoor living
How It Works
Build the Hillsboro B in 5 Simple Steps
From free site evaluation to move-in day. One team, one price, one beautiful home.
01
Free Site Evaluation
We assess your land for build-readiness including soil, utilities, and access.
02
Choose Your Plan
Select the Hillsboro B or customize it. Bring your own plan too.
03
Get Clear Pricing
Transparent pricing with no hidden fees or surprises.
04
Build Begins
Our experienced team breaks ground with one dedicated point of contact.
05
Move In
Walk through your finished dream home and start making memories.
Take the Next Step
Get Details for the Hillsboro B
Tell us where you want to build and we'll match you with your local team.
Mortgage Calculator
*Estimate only. Does not include taxes and insurance. WAC.
$
$
%
Estimated Monthly Payment
$2,213/mo
Common Questions
Hillsboro B Floor Plan FAQ
Yes. Every Southwest Homes floor plan is a starting point. Work directly with our design team to personalize cabinet finishes, flooring, countertops, fixtures, exterior colors, and structural options. We adapt the Hillsboro B to fit your land, your family, and your lifestyle.
No - traditional construction loans require you to pay interest. We work with lenders who offer construction-to-permanent financing that simplifies this - often with $0 down and no payments and no interest until the build is complete. *WAC
Pricing depends on the floor plan, location, lot conditions, and customizations you choose. We provide transparent pricing with no hidden fees. Contact us for a personalized quote based on your specific plan and land.
Every home is different - the time frame changes from permit approval to move-in, depending on the plan size, site conditions, local permitting timelines, and even weather conditions. Your project manager will give you a specific schedule during the planning phase.
We typically serve a 100-mile radius around each of our offices in San Antonio, Corpus Christi, Canton TX, and Springdale AR. If you're unsure whether your land is in our service area, call your nearest office and we'll let you know right away.
Yes. Southwest Homes offers a Bring Your Own Plan option. If you have a design you love, our team can review it and provide pricing to build it on your land. Learn more about Bring Your Own Plan.
Ready to Build the Hillsboro B on Your Land?
No construction loan required. Transparent pricing. Free site evaluation. 25+ years and 3,000+ homes built.



