

*Plan may show available options and upgrades. Click to zoom. Scroll to zoom. Drag to pan.
Your Custom Home Floor Plan
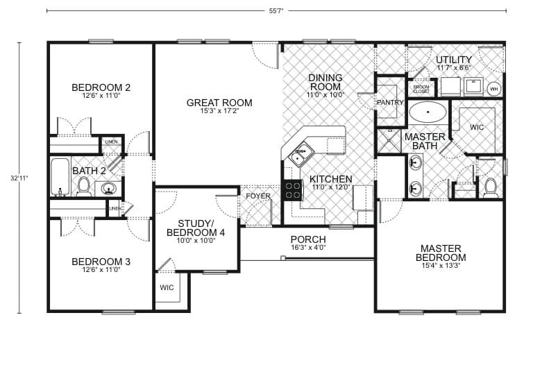
Durango Floor Plan
4 Beds
2 Baths
1,632 Sq Ft
$0 Down - No Payments During Construction*
*With approved credit. No traditional construction loan required.
This versatile floor plan, the Durango, offers a unique combination of practical living and welcoming charm, making it an ideal template for your custom home. As you enter through the inviting porch, the foyer opens up to a spacious great room, a central gathering space perfect for entertainment and family time.
The kitchen, with its efficient layout, includes modern appliances and a pantry for additional storage, while the adjoining dining room provides a comfortable setting for meals with a view of the outdoors. The seamless integration of the kitchen and dining area encourages a congenial atmosphere for both cooking and dining.
The master suite, designed for privacy and tranquility, features a generous bedroom with an en-suite master bath, complete with a dual vanity, a large shower, and a substantial walk-in closet. The layout also includes two additional bedrooms with shared access to a full bath, perfect for family or guests.
One of the highlights of this plan is the flexibility of the study, which can easily be converted into a fourth bedroom, home office, or den, adapting to your changing needs. A functional utility room ensures laundry tasks are out of sight, contributing to the home’s orderly flow.
With a total living area of 1,632 square feet, this home is efficiently designed to maximize space without sacrificing style. The additional outdoor porch area provides a delightful space for relaxation and enjoying the fresh air, making the Durango an excellent choice for a comfortable, stylish home.
Living Area
1,632 sq ft
Bedrooms
4
Bathrooms
2
Stories
1
Speak To Your New Custom Home Builder Today!
25+
Years Experience
3,000+
Homes Built
5
Office Locations
A+
BBB Rating
Make It Yours
Customize the Durango
Every floor plan is a starting point, not a box. Work directly with our design team to personalize every detail of the Durango to fit your land, your family, and your lifestyle - at a price that's clear from day one.
Cabinet styles and finishes
Flooring throughout
Countertops and backsplashes
Exterior colors and materials
Structural layout changes
Fixtures and hardware
Ceiling treatments
Porch and outdoor living
How It Works
Build the Durango in 5 Simple Steps
From free site evaluation to move-in day. One team, one price, one beautiful home.
01
Free Site Evaluation
We assess your land for build-readiness including soil, utilities, and access.
02
Choose Your Plan
Select the Durango or customize it. Bring your own plan too.
03
Get Clear Pricing
Transparent pricing with no hidden fees or surprises.
04
Build Begins
Our experienced team breaks ground with one dedicated point of contact.
05
Move In
Walk through your finished dream home and start making memories.
Take the Next Step
Get Details for the Durango
Tell us where you want to build and we'll match you with your local team.
Mortgage Calculator
*Estimate only. Does not include taxes and insurance. WAC.
$
$
%
Estimated Monthly Payment
$2,213/mo
Common Questions
Durango Floor Plan FAQ
Yes. Every Southwest Homes floor plan is a starting point. Work directly with our design team to personalize cabinet finishes, flooring, countertops, fixtures, exterior colors, and structural options. We adapt the Durango to fit your land, your family, and your lifestyle.
No - traditional construction loans require you to pay interest. We work with lenders who offer construction-to-permanent financing that simplifies this - often with $0 down and no payments and no interest until the build is complete. *WAC
Pricing depends on the floor plan, location, lot conditions, and customizations you choose. We provide transparent pricing with no hidden fees. Contact us for a personalized quote based on your specific plan and land.
Every home is different - the time frame changes from permit approval to move-in, depending on the plan size, site conditions, local permitting timelines, and even weather conditions. Your project manager will give you a specific schedule during the planning phase.
We typically serve a 100-mile radius around each of our offices in San Antonio, Corpus Christi, Canton TX, and Springdale AR. If you're unsure whether your land is in our service area, call your nearest office and we'll let you know right away.
Yes. Southwest Homes offers a Bring Your Own Plan option. If you have a design you love, our team can review it and provide pricing to build it on your land. Learn more about Bring Your Own Plan.
Ready to Build the Durango on Your Land?
No construction loan required. Transparent pricing. Free site evaluation. 25+ years and 3,000+ homes built.



