

*Plan may show available options and upgrades. Click to zoom. Scroll to zoom. Drag to pan.
Your Custom Home Floor Plan
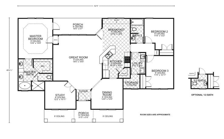
Frio Floor Plan
3 Beds
2 Baths
1,880 Sq Ft
$0 Down - No Payments During Construction*
*With approved credit. No traditional construction loan required.
The Frio floor plan is an ideal blend of elegance and comfort, a perfect starting point for those seeking to custom-build a home with both character and contemporary conveniences. As you step through the expansive front porch, you’re welcomed into a bright foyer that leads into an impressive great room with a 9-foot ceiling, offering a spacious area for family gatherings and entertainment.
The kitchen, designed to be both functional and stylish, features ample counter space, modern appliances, and a pantry. It overlooks a charming breakfast nook, creating a perfect spot for casual dining, while the adjacent dining room is suited for more formal occasions. The study, with its own dedicated space, provides a quiet retreat for work or leisure.
The master suite is a private sanctuary with a coffered ceiling, adding an element of sophistication. It includes a well-appointed master bath with dual vanities and a generous walk-in closet, providing a serene and organized personal space. Two additional bedrooms are strategically placed to ensure privacy, with convenient access to the second full bath.
A utility room is smartly located for household chores, and the home includes additional storage spaces to keep living areas uncluttered. With a total living area of 1,880 square feet and additional porch space, this floor plan is thoughtfully designed to provide a comfortable and stylish lifestyle, making it an excellent foundation for your dream home.
Living Area
1,880 sq ft
Bedrooms
3
Bathrooms
2
Stories
1
Speak To Your New Custom Home Builder Today!
25+
Years Experience
3,000+
Homes Built
5
Office Locations
A+
BBB Rating
Make It Yours
Customize the Frio
Every floor plan is a starting point, not a box. Work directly with our design team to personalize every detail of the Frio to fit your land, your family, and your lifestyle - at a price that's clear from day one.
Cabinet styles and finishes
Flooring throughout
Countertops and backsplashes
Exterior colors and materials
Structural layout changes
Fixtures and hardware
Ceiling treatments
Porch and outdoor living
How It Works
Build the Frio in 5 Simple Steps
From free site evaluation to move-in day. One team, one price, one beautiful home.
01
Free Site Evaluation
We assess your land for build-readiness including soil, utilities, and access.
02
Choose Your Plan
Select the Frio or customize it. Bring your own plan too.
03
Get Clear Pricing
Transparent pricing with no hidden fees or surprises.
04
Build Begins
Our experienced team breaks ground with one dedicated point of contact.
05
Move In
Walk through your finished dream home and start making memories.
Take the Next Step
Get Details for the Frio
Tell us where you want to build and we'll match you with your local team.
Mortgage Calculator
*Estimate only. Does not include taxes and insurance. WAC.
$
$
%
Estimated Monthly Payment
$2,213/mo
Common Questions
Frio Floor Plan FAQ
Yes. Every Southwest Homes floor plan is a starting point. Work directly with our design team to personalize cabinet finishes, flooring, countertops, fixtures, exterior colors, and structural options. We adapt the Frio to fit your land, your family, and your lifestyle.
No - traditional construction loans require you to pay interest. We work with lenders who offer construction-to-permanent financing that simplifies this - often with $0 down and no payments and no interest until the build is complete. *WAC
Pricing depends on the floor plan, location, lot conditions, and customizations you choose. We provide transparent pricing with no hidden fees. Contact us for a personalized quote based on your specific plan and land.
Every home is different - the time frame changes from permit approval to move-in, depending on the plan size, site conditions, local permitting timelines, and even weather conditions. Your project manager will give you a specific schedule during the planning phase.
We typically serve a 100-mile radius around each of our offices in San Antonio, Corpus Christi, Canton TX, and Springdale AR. If you're unsure whether your land is in our service area, call your nearest office and we'll let you know right away.
Yes. Southwest Homes offers a Bring Your Own Plan option. If you have a design you love, our team can review it and provide pricing to build it on your land. Learn more about Bring Your Own Plan.
Ready to Build the Frio on Your Land?
No construction loan required. Transparent pricing. Free site evaluation. 25+ years and 3,000+ homes built.



