

*Plan may show available options and upgrades. Click to zoom. Scroll to zoom. Drag to pan.
Your Custom Home Floor Plan
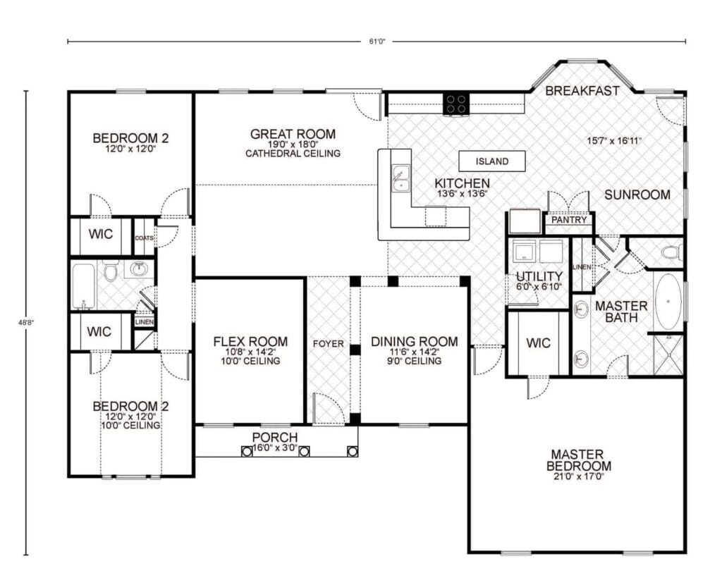
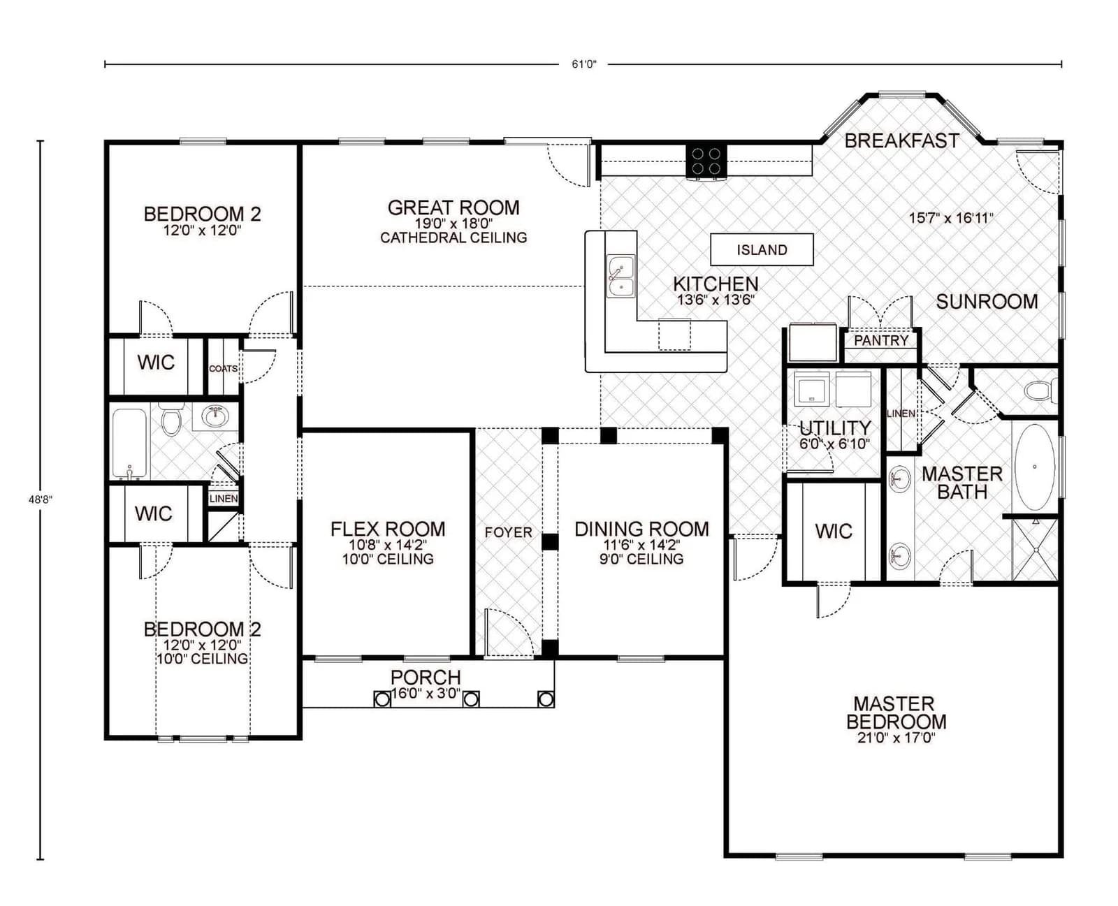
Amarillo B Floor Plan
3 Beds
2 Baths
2,376 Sq Ft
$0 Down - No Payments During Construction*
*With approved credit. No traditional construction loan required.
Step into this masterfully designed floor plan, ideal for those who appreciate a harmonious blend of elegance and comfort in their custom home. At the forefront, a graceful porch ushers you into a spacious foyer, which leads to a versatile flex room with a 10-foot ceiling, offering endless possibilities as a home office, study, or playroom.
The heart of the home is undoubtedly the great room, grand with a cathedral ceiling and abundant space, perfect for lively gatherings or tranquil evenings by the fireplace. The great room flows effortlessly into the gourmet kitchen, which boasts a functional island and a walk-in pantry, ensuring that every culinary experience is a delight. The adjacent breakfast area, bathed in natural light, offers an inviting space for casual dining, with direct access to a sunroom where one can indulge in the serene views of the outdoors.
The master suite is a luxurious retreat, with its generous dimensions allowing for a king-size bed and additional seating. The adjoining master bath promises a spa-like experience with its dual vanities, standalone shower, and sumptuous soaking tub, leading to a spacious walk-in closet that fashion aficionados will adore.
On the opposite side of the home, a second bedroom with a full bath and walk-in closet provides a private oasis for guests or family members. The utility room, conveniently located off the kitchen, doubles as a laundry and additional storage space, while the formal dining room stands ready to host memorable dinners.
With approximately 2,376 square feet of living space and additional porch and sunroom areas, this plan offers a perfect canvas for those looking to craft a home that’s as inviting as it is functional. The blend of modern amenities and thoughtful design in this plan sets the stage for a home that’s not just lived in but cherished.
Living Area
2,376 sq ft
Bedrooms
3
Bathrooms
2
Stories
1
Speak To Your New Custom Home Builder Today!
25+
Years Experience
3,000+
Homes Built
5
Office Locations
A+
BBB Rating
Make It Yours
Customize the Amarillo B
Every floor plan is a starting point, not a box. Work directly with our design team to personalize every detail of the Amarillo B to fit your land, your family, and your lifestyle - at a price that's clear from day one.
Cabinet styles and finishes
Flooring throughout
Countertops and backsplashes
Exterior colors and materials
Structural layout changes
Fixtures and hardware
Ceiling treatments
Porch and outdoor living
How It Works
Build the Amarillo B in 5 Simple Steps
From free site evaluation to move-in day. One team, one price, one beautiful home.
01
Free Site Evaluation
We assess your land for build-readiness including soil, utilities, and access.
02
Choose Your Plan
Select the Amarillo B or customize it. Bring your own plan too.
03
Get Clear Pricing
Transparent pricing with no hidden fees or surprises.
04
Build Begins
Our experienced team breaks ground with one dedicated point of contact.
05
Move In
Walk through your finished dream home and start making memories.
Take the Next Step
Get Details for the Amarillo B
Tell us where you want to build and we'll match you with your local team.
Mortgage Calculator
*Estimate only. Does not include taxes and insurance. WAC.
$
$
%
Estimated Monthly Payment
$2,213/mo
Common Questions
Amarillo B Floor Plan FAQ
Yes. Every Southwest Homes floor plan is a starting point. Work directly with our design team to personalize cabinet finishes, flooring, countertops, fixtures, exterior colors, and structural options. We adapt the Amarillo B to fit your land, your family, and your lifestyle.
No - traditional construction loans require you to pay interest. We work with lenders who offer construction-to-permanent financing that simplifies this - often with $0 down and no payments and no interest until the build is complete. *WAC
Pricing depends on the floor plan, location, lot conditions, and customizations you choose. We provide transparent pricing with no hidden fees. Contact us for a personalized quote based on your specific plan and land.
Every home is different - the time frame changes from permit approval to move-in, depending on the plan size, site conditions, local permitting timelines, and even weather conditions. Your project manager will give you a specific schedule during the planning phase.
We typically serve a 100-mile radius around each of our offices in San Antonio, Corpus Christi, Canton TX, and Springdale AR. If you're unsure whether your land is in our service area, call your nearest office and we'll let you know right away.
Yes. Southwest Homes offers a Bring Your Own Plan option. If you have a design you love, our team can review it and provide pricing to build it on your land. Learn more about Bring Your Own Plan.
Ready to Build the Amarillo B on Your Land?
No construction loan required. Transparent pricing. Free site evaluation. 25+ years and 3,000+ homes built.



