

*Plan may show available options and upgrades. Click to zoom. Scroll to zoom. Drag to pan.
Your Custom Home Floor Plan
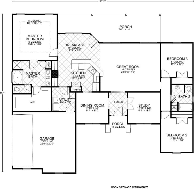
Hillsboro C Floor Plan
3 Beds
2 Baths
2,051 Sq Ft
2 Cars
$0 Down - No Payments During Construction*
*With approved credit. No traditional construction loan required.
The Hillsboro C floor plan is a beautifully crafted layout, ideal for those looking to build a custom home that combines functional design with aesthetic appeal. The plan features a sprawling porch leading into a welcoming foyer, which then opens up to a spacious great room with a 10-foot ceiling—perfect for hosting guests or enjoying family time.
The kitchen, thoughtfully situated at the heart of the home, boasts a pantry and a sizable island that overlooks the breakfast area, ensuring meals are a communal and inviting experience. The formal dining room, with its own elegant ceiling design, offers a dedicated space for sit-down meals.
The master suite is a luxurious retreat, with a tray ceiling in the bedroom for added depth and style, a lavish master bath, and a walk-in closet. The home also includes two additional bedrooms, each with easy access to a full bathroom, ensuring comfort and privacy for all inhabitants.
A utility room provides practical space for household management, while a study offers the flexibility to serve as a home office, library, or extra bedroom. With a living area totaling 2,051 square feet, this floor plan is an excellent canvas for creating a home that’s as cozy as it is sophisticated, offering a seamless blend of public and private spaces to cater to any lifestyle.
Living Area
2,051 sq ft
Bedrooms
3
Bathrooms
2
Stories
1
Cars
2
Speak To Your New Custom Home Builder Today!
25+
Years Experience
3,000+
Homes Built
5
Office Locations
A+
BBB Rating
Make It Yours
Customize the Hillsboro C
Every floor plan is a starting point, not a box. Work directly with our design team to personalize every detail of the Hillsboro C to fit your land, your family, and your lifestyle - at a price that's clear from day one.
Cabinet styles and finishes
Flooring throughout
Countertops and backsplashes
Exterior colors and materials
Structural layout changes
Fixtures and hardware
Ceiling treatments
Porch and outdoor living
How It Works
Build the Hillsboro C in 5 Simple Steps
From free site evaluation to move-in day. One team, one price, one beautiful home.
01
Free Site Evaluation
We assess your land for build-readiness including soil, utilities, and access.
02
Choose Your Plan
Select the Hillsboro C or customize it. Bring your own plan too.
03
Get Clear Pricing
Transparent pricing with no hidden fees or surprises.
04
Build Begins
Our experienced team breaks ground with one dedicated point of contact.
05
Move In
Walk through your finished dream home and start making memories.
Take the Next Step
Get Details for the Hillsboro C
Tell us where you want to build and we'll match you with your local team.
Mortgage Calculator
*Estimate only. Does not include taxes and insurance. WAC.
$
$
%
Estimated Monthly Payment
$2,213/mo
Common Questions
Hillsboro C Floor Plan FAQ
Yes. Every Southwest Homes floor plan is a starting point. Work directly with our design team to personalize cabinet finishes, flooring, countertops, fixtures, exterior colors, and structural options. We adapt the Hillsboro C to fit your land, your family, and your lifestyle.
No - traditional construction loans require you to pay interest. We work with lenders who offer construction-to-permanent financing that simplifies this - often with $0 down and no payments and no interest until the build is complete. *WAC
Pricing depends on the floor plan, location, lot conditions, and customizations you choose. We provide transparent pricing with no hidden fees. Contact us for a personalized quote based on your specific plan and land.
Every home is different - the time frame changes from permit approval to move-in, depending on the plan size, site conditions, local permitting timelines, and even weather conditions. Your project manager will give you a specific schedule during the planning phase.
We typically serve a 100-mile radius around each of our offices in San Antonio, Corpus Christi, Canton TX, and Springdale AR. If you're unsure whether your land is in our service area, call your nearest office and we'll let you know right away.
Yes. Southwest Homes offers a Bring Your Own Plan option. If you have a design you love, our team can review it and provide pricing to build it on your land. Learn more about Bring Your Own Plan.
Ready to Build the Hillsboro C on Your Land?
No construction loan required. Transparent pricing. Free site evaluation. 25+ years and 3,000+ homes built.



