

*Plan may show available options and upgrades. Click to zoom. Scroll to zoom. Drag to pan.
Your Custom Home Floor Plan
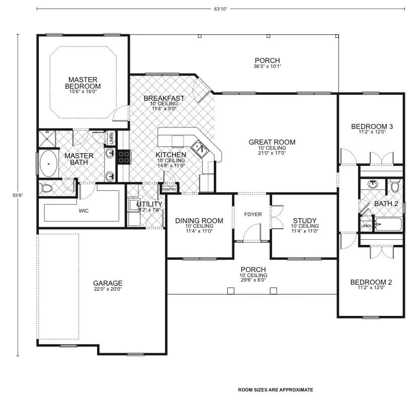
Hillsboro Floor Plan
3 Beds
2 Baths
2,033 Sq Ft
2 Cars
$0 Down - No Payments During Construction*
*With approved credit. No traditional construction loan required.
The Hillsboro floor plan presents an impressive combination of spaciousness and warmth, perfect for those seeking to custom-build a home with both style and functionality. The expansive porch sets the stage for a welcoming entrance into the home, leading into a foyer that opens to a grand great room with a 10-foot ceiling, offering ample space for entertaining and comfortable daily living.
The kitchen, designed with the home chef in mind, features a large island, generous counter space, and a walk-in pantry, all while remaining open to the breakfast area for easy morning gatherings. A formal dining room with a 10-foot ceiling provides a sophisticated space for dinners and special occasions.
The master suite is crafted as a private haven, boasting a large bedroom area, a luxurious master bath with dual vanities, a separate shower, and a spacious walk-in closet. On the opposite side of the home, two additional bedrooms offer privacy and convenience, sharing access to the second full bath. A study with a 10-foot ceiling adds flexibility to the floor plan, functioning as a home office or an additional bedroom as needed.
A utility room situated off the kitchen ensures practicality in the home’s layout, leading to a sizable garage. With a living area of 2,033 square feet, this home is carefully designed to maximize both living and storage space, offering a comfortable and elegant environment that is ideal for both families and entertainers alike.
Living Area
2,033 sq ft
Bedrooms
3
Bathrooms
2
Stories
1
Cars
2
Speak To Your New Custom Home Builder Today!
25+
Years Experience
3,000+
Homes Built
5
Office Locations
A+
BBB Rating
Make It Yours
Customize the Hillsboro
Every floor plan is a starting point, not a box. Work directly with our design team to personalize every detail of the Hillsboro to fit your land, your family, and your lifestyle - at a price that's clear from day one.
Cabinet styles and finishes
Flooring throughout
Countertops and backsplashes
Exterior colors and materials
Structural layout changes
Fixtures and hardware
Ceiling treatments
Porch and outdoor living
How It Works
Build the Hillsboro in 5 Simple Steps
From free site evaluation to move-in day. One team, one price, one beautiful home.
01
Free Site Evaluation
We assess your land for build-readiness including soil, utilities, and access.
02
Choose Your Plan
Select the Hillsboro or customize it. Bring your own plan too.
03
Get Clear Pricing
Transparent pricing with no hidden fees or surprises.
04
Build Begins
Our experienced team breaks ground with one dedicated point of contact.
05
Move In
Walk through your finished dream home and start making memories.
Take the Next Step
Get Details for the Hillsboro
Tell us where you want to build and we'll match you with your local team.
Mortgage Calculator
*Estimate only. Does not include taxes and insurance. WAC.
$
$
%
Estimated Monthly Payment
$2,213/mo
Common Questions
Hillsboro Floor Plan FAQ
Yes. Every Southwest Homes floor plan is a starting point. Work directly with our design team to personalize cabinet finishes, flooring, countertops, fixtures, exterior colors, and structural options. We adapt the Hillsboro to fit your land, your family, and your lifestyle.
No - traditional construction loans require you to pay interest. We work with lenders who offer construction-to-permanent financing that simplifies this - often with $0 down and no payments and no interest until the build is complete. *WAC
Pricing depends on the floor plan, location, lot conditions, and customizations you choose. We provide transparent pricing with no hidden fees. Contact us for a personalized quote based on your specific plan and land.
Every home is different - the time frame changes from permit approval to move-in, depending on the plan size, site conditions, local permitting timelines, and even weather conditions. Your project manager will give you a specific schedule during the planning phase.
We typically serve a 100-mile radius around each of our offices in San Antonio, Corpus Christi, Canton TX, and Springdale AR. If you're unsure whether your land is in our service area, call your nearest office and we'll let you know right away.
Yes. Southwest Homes offers a Bring Your Own Plan option. If you have a design you love, our team can review it and provide pricing to build it on your land. Learn more about Bring Your Own Plan.
Ready to Build the Hillsboro on Your Land?
No construction loan required. Transparent pricing. Free site evaluation. 25+ years and 3,000+ homes built.



