

*Plan may show available options and upgrades. Click to zoom. Scroll to zoom. Drag to pan.
Your Custom Home Floor Plan
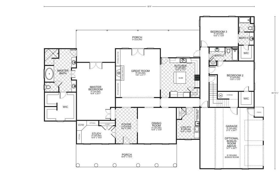
Azelea Floor Plan
3 Beds
3 Baths
3,404 Sq Ft
2 Cars
$0 Down - No Payments During Construction*
*With approved credit. No traditional construction loan required.
This floor plan unveils a harmonious blend of luxury and comfort, ideal for those seeking to create a custom home with an air of sophistication. The expansive front porch sets a welcoming tone, leading into a grand foyer that transitions into a voluminous great room with a 9-foot ceiling, creating an open and inviting atmosphere perfect for entertaining or unwinding.
Adjacent to the great room, the gourmet kitchen, complete with a walk-in pantry and an ample island, offers a convivial space for family and friends to gather. The dining room, conveniently positioned next to the kitchen, provides an elegant backdrop for formal meals.
Secluded for privacy, the master suite is a realm of tranquility, featuring a lofty ceiling, room for a sitting area, and a luxurious master bath with a dual-sink vanity, a separate shower, a soaking tub, and a capacious walk-in closet. The two additional bedrooms, each with their own walk-in closets and shared access to a full bathroom, provide comfortable living spaces for family or guests.
The study offers a versatile space that can serve as a home office or a quiet retreat, while the side porch presents an intimate outdoor living area. The utility room ensures household tasks are kept discreet and orderly.
For those desiring more space, this floor plan includes an optional bonus room above the garage, offering a flexible area that can be customized to fit any need—be it a home theater, gym, or additional family room.
Completing this home is a generous garage with extra storage space. With a total living area of 3,014 square feet, this floor plan is a canvas awaiting your personal touch to become the home of your dreams, offering a balance of grandeur and practicality that is rare to find.
Living Area
3,404 sq ft
Bedrooms
3
Bathrooms
3
Stories
1
Cars
2
Speak To Your New Custom Home Builder Today!
25+
Years Experience
3,000+
Homes Built
5
Office Locations
A+
BBB Rating
Make It Yours
Customize the Azelea
Every floor plan is a starting point, not a box. Work directly with our design team to personalize every detail of the Azelea to fit your land, your family, and your lifestyle - at a price that's clear from day one.
Cabinet styles and finishes
Flooring throughout
Countertops and backsplashes
Exterior colors and materials
Structural layout changes
Fixtures and hardware
Ceiling treatments
Porch and outdoor living
How It Works
Build the Azelea in 5 Simple Steps
From free site evaluation to move-in day. One team, one price, one beautiful home.
01
Free Site Evaluation
We assess your land for build-readiness including soil, utilities, and access.
02
Choose Your Plan
Select the Azelea or customize it. Bring your own plan too.
03
Get Clear Pricing
Transparent pricing with no hidden fees or surprises.
04
Build Begins
Our experienced team breaks ground with one dedicated point of contact.
05
Move In
Walk through your finished dream home and start making memories.
Take the Next Step
Get Details for the Azelea
Tell us where you want to build and we'll match you with your local team.
Mortgage Calculator
*Estimate only. Does not include taxes and insurance. WAC.
$
$
%
Estimated Monthly Payment
$2,213/mo
Common Questions
Azelea Floor Plan FAQ
Yes. Every Southwest Homes floor plan is a starting point. Work directly with our design team to personalize cabinet finishes, flooring, countertops, fixtures, exterior colors, and structural options. We adapt the Azelea to fit your land, your family, and your lifestyle.
No - traditional construction loans require you to pay interest. We work with lenders who offer construction-to-permanent financing that simplifies this - often with $0 down and no payments and no interest until the build is complete. *WAC
Pricing depends on the floor plan, location, lot conditions, and customizations you choose. We provide transparent pricing with no hidden fees. Contact us for a personalized quote based on your specific plan and land.
Every home is different - the time frame changes from permit approval to move-in, depending on the plan size, site conditions, local permitting timelines, and even weather conditions. Your project manager will give you a specific schedule during the planning phase.
We typically serve a 100-mile radius around each of our offices in San Antonio, Corpus Christi, Canton TX, and Springdale AR. If you're unsure whether your land is in our service area, call your nearest office and we'll let you know right away.
Yes. Southwest Homes offers a Bring Your Own Plan option. If you have a design you love, our team can review it and provide pricing to build it on your land. Learn more about Bring Your Own Plan.
Ready to Build the Azelea on Your Land?
No construction loan required. Transparent pricing. Free site evaluation. 25+ years and 3,000+ homes built.



