

*Plan may show available options and upgrades. Click to zoom. Scroll to zoom. Drag to pan.
Your Custom Home Floor Plan
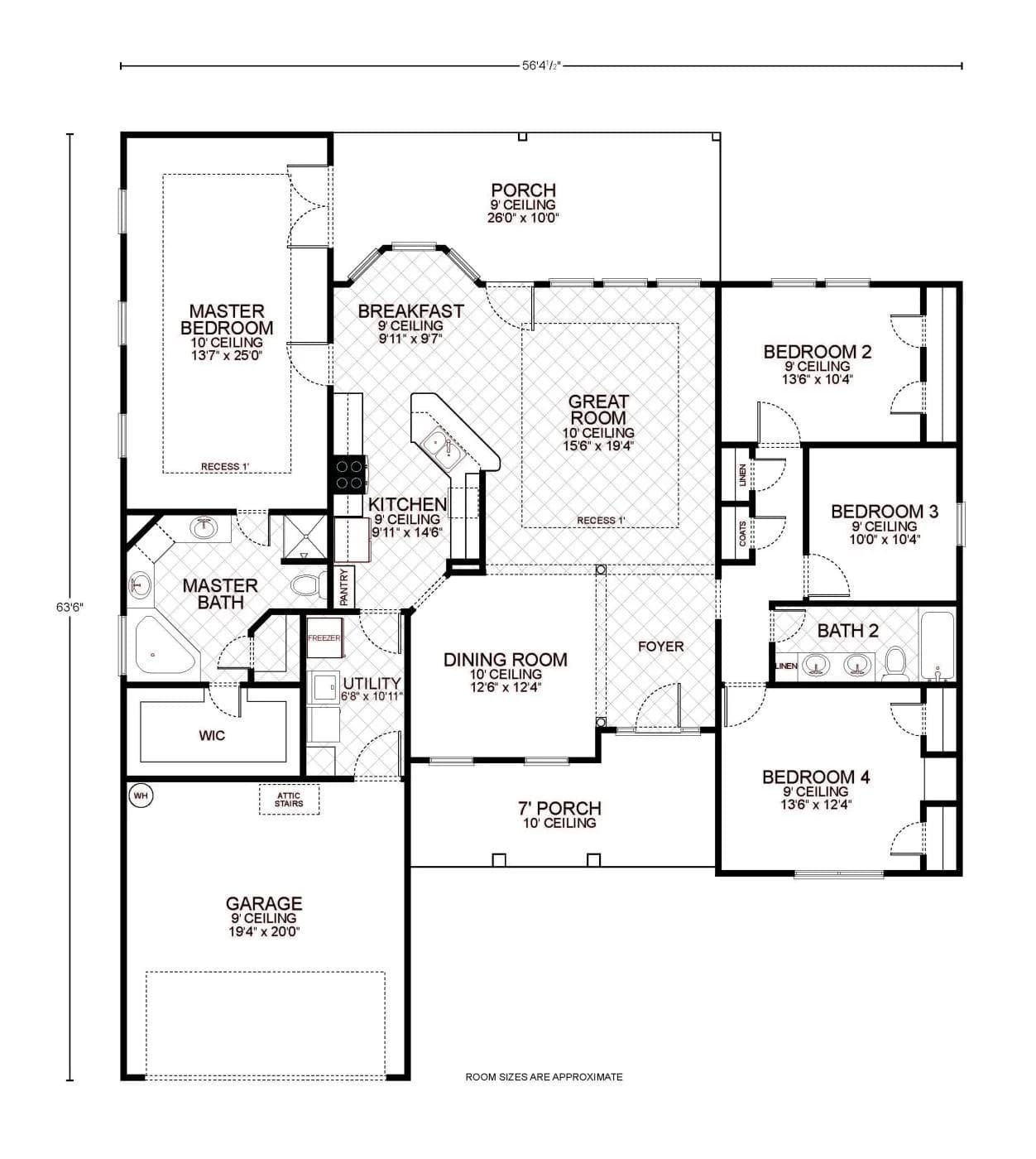
Navasota B Floor Plan
4 Beds
2 Baths
2,107 Sq Ft
2 Cars
$0 Down - No Payments During Construction*
*With approved credit. No traditional construction loan required.
This alluring floor plan is a seamless integration of classic design and modern amenities, spanning approximately 2180 square feet of living space. It is expertly crafted to offer an environment of warmth and elegance.
The master suite is a luxurious escape with its expansive bedroom, a lavish master bath complete with all the refinements, and a generous walk-in closet. The open design concept interlinks the great room, with its soaring 10-foot ceiling, to the well-appointed kitchen and delightful breakfast nook, forming the heart of the home for family activities and entertainment.
The kitchen is a culinary dream with its optimal ceiling height and ample counter space, while the breakfast nook serves as a charming spot for casual dining with access to a serene porch. A distinguished dining room with a 10-foot ceiling awaits formal gatherings.
Three additional bedrooms, each with 9-foot ceilings, ensure that everyone has their private retreat, complemented by a full second bathroom. The home’s thoughtful design includes a practical utility room, a welcoming foyer that sets the stage for the home’s ambiance, and a spacious two-car garage.
Outdoors, the home features a stately front porch and a substantial back porch, providing multiple vantage points to enjoy the surrounding scenery. The total under-roof area of 2898 square feet affords ample space for a blend of active living and gracious entertaining, making this home an impeccable choice for discerning homeowners.
Living Area
2,107 sq ft
Bedrooms
4
Bathrooms
2
Stories
1
Cars
2
Speak To Your New Custom Home Builder Today!
25+
Years Experience
3,000+
Homes Built
5
Office Locations
A+
BBB Rating
Make It Yours
Customize the Navasota B
Every floor plan is a starting point, not a box. Work directly with our design team to personalize every detail of the Navasota B to fit your land, your family, and your lifestyle - at a price that's clear from day one.
Cabinet styles and finishes
Flooring throughout
Countertops and backsplashes
Exterior colors and materials
Structural layout changes
Fixtures and hardware
Ceiling treatments
Porch and outdoor living
How It Works
Build the Navasota B in 5 Simple Steps
From free site evaluation to move-in day. One team, one price, one beautiful home.
01
Free Site Evaluation
We assess your land for build-readiness including soil, utilities, and access.
02
Choose Your Plan
Select the Navasota B or customize it. Bring your own plan too.
03
Get Clear Pricing
Transparent pricing with no hidden fees or surprises.
04
Build Begins
Our experienced team breaks ground with one dedicated point of contact.
05
Move In
Walk through your finished dream home and start making memories.
Take the Next Step
Get Details for the Navasota B
Tell us where you want to build and we'll match you with your local team.
Mortgage Calculator
*Estimate only. Does not include taxes and insurance. WAC.
$
$
%
Estimated Monthly Payment
$2,213/mo
Common Questions
Navasota B Floor Plan FAQ
Yes. Every Southwest Homes floor plan is a starting point. Work directly with our design team to personalize cabinet finishes, flooring, countertops, fixtures, exterior colors, and structural options. We adapt the Navasota B to fit your land, your family, and your lifestyle.
No - traditional construction loans require you to pay interest. We work with lenders who offer construction-to-permanent financing that simplifies this - often with $0 down and no payments and no interest until the build is complete. *WAC
Pricing depends on the floor plan, location, lot conditions, and customizations you choose. We provide transparent pricing with no hidden fees. Contact us for a personalized quote based on your specific plan and land.
Every home is different - the time frame changes from permit approval to move-in, depending on the plan size, site conditions, local permitting timelines, and even weather conditions. Your project manager will give you a specific schedule during the planning phase.
We typically serve a 100-mile radius around each of our offices in San Antonio, Corpus Christi, Canton TX, and Springdale AR. If you're unsure whether your land is in our service area, call your nearest office and we'll let you know right away.
Yes. Southwest Homes offers a Bring Your Own Plan option. If you have a design you love, our team can review it and provide pricing to build it on your land. Learn more about Bring Your Own Plan.
Ready to Build the Navasota B on Your Land?
No construction loan required. Transparent pricing. Free site evaluation. 25+ years and 3,000+ homes built.



