

*Plan may show available options and upgrades. Click to zoom. Scroll to zoom. Drag to pan.
Your Custom Home Floor Plan
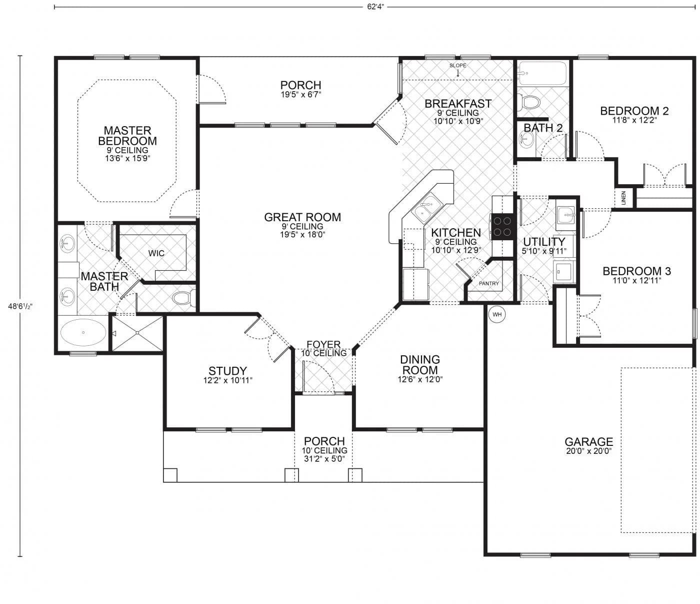
Driftwood C Floor Plan
3 Beds
2 Baths
1,853 Sq Ft
2 Cars
$0 Down - No Payments During Construction*
*With approved credit. No traditional construction loan required.
This inviting floor plan is a perfect blueprint for those looking to build a custom home that combines classic comfort with modern flair. The large porch welcomes you into a spacious foyer, leading to a study room that offers a quiet retreat for work or relaxation.
At the center of the home is the great room, with a 9-foot ceiling that enhances the sense of space, making it an ideal area for hosting gatherings or enjoying peaceful family time. The great room is flanked by a well-appointed kitchen, featuring modern appliances, a convenient pantry, and an island that serves as the heart of the home. The adjacent breakfast area provides a cozy space for casual dining and lively conversation.
For more formal occasions, the dining room is elegantly situated to offer a sophisticated dining experience. The master suite is a secluded haven, complete with a large bedroom, a luxurious master bath with a walk-in closet, and private access to the back porch, perfect for quiet morning coffees or evening relaxation.
Two additional bedrooms are thoughtfully positioned to maximize privacy and convenience, with easy access to a full bath. A utility room is strategically located to serve as a laundry and additional storage space, leading out to the two-car garage.
With a total living area of 1,853 square feet, this floor plan is designed to provide a perfect balance between shared living spaces and private retreats. The additional outdoor living space offers extended enjoyment of your surroundings, making this floor plan an exceptional choice for a family seeking a home that is both beautiful and functional.
Living Area
1,853 sq ft
Bedrooms
3
Bathrooms
2
Stories
1
Cars
2
Speak To Your New Custom Home Builder Today!
25+
Years Experience
3,000+
Homes Built
5
Office Locations
A+
BBB Rating
Make It Yours
Customize the Driftwood C
Every floor plan is a starting point, not a box. Work directly with our design team to personalize every detail of the Driftwood C to fit your land, your family, and your lifestyle - at a price that's clear from day one.
Cabinet styles and finishes
Flooring throughout
Countertops and backsplashes
Exterior colors and materials
Structural layout changes
Fixtures and hardware
Ceiling treatments
Porch and outdoor living
How It Works
Build the Driftwood C in 5 Simple Steps
From free site evaluation to move-in day. One team, one price, one beautiful home.
01
Free Site Evaluation
We assess your land for build-readiness including soil, utilities, and access.
02
Choose Your Plan
Select the Driftwood C or customize it. Bring your own plan too.
03
Get Clear Pricing
Transparent pricing with no hidden fees or surprises.
04
Build Begins
Our experienced team breaks ground with one dedicated point of contact.
05
Move In
Walk through your finished dream home and start making memories.
Take the Next Step
Get Details for the Driftwood C
Tell us where you want to build and we'll match you with your local team.
Mortgage Calculator
*Estimate only. Does not include taxes and insurance. WAC.
$
$
%
Estimated Monthly Payment
$2,213/mo
Common Questions
Driftwood C Floor Plan FAQ
Yes. Every Southwest Homes floor plan is a starting point. Work directly with our design team to personalize cabinet finishes, flooring, countertops, fixtures, exterior colors, and structural options. We adapt the Driftwood C to fit your land, your family, and your lifestyle.
No - traditional construction loans require you to pay interest. We work with lenders who offer construction-to-permanent financing that simplifies this - often with $0 down and no payments and no interest until the build is complete. *WAC
Pricing depends on the floor plan, location, lot conditions, and customizations you choose. We provide transparent pricing with no hidden fees. Contact us for a personalized quote based on your specific plan and land.
Every home is different - the time frame changes from permit approval to move-in, depending on the plan size, site conditions, local permitting timelines, and even weather conditions. Your project manager will give you a specific schedule during the planning phase.
We typically serve a 100-mile radius around each of our offices in San Antonio, Corpus Christi, Canton TX, and Springdale AR. If you're unsure whether your land is in our service area, call your nearest office and we'll let you know right away.
Yes. Southwest Homes offers a Bring Your Own Plan option. If you have a design you love, our team can review it and provide pricing to build it on your land. Learn more about Bring Your Own Plan.
Ready to Build the Driftwood C on Your Land?
No construction loan required. Transparent pricing. Free site evaluation. 25+ years and 3,000+ homes built.



