

*Plan may show available options and upgrades. Click to zoom. Scroll to zoom. Drag to pan.
Your Custom Home Floor Plan
La Espada Floor Plan
3 Beds
2 Baths
1,808 Sq Ft
2 Cars
$0 Down - No Payments During Construction*
*With approved credit. No traditional construction loan required.
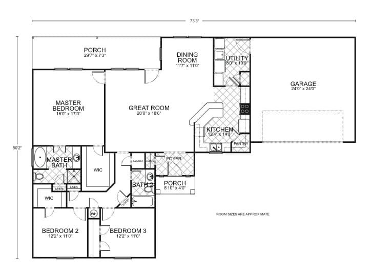
The La Espada floor plan is a harmonious combination of luxury and practical design, offering an expansive living area of 1808 sq. ft. for those looking to build their custom dream home.
From the moment you step onto the grand front porch and through the foyer, you are greeted by the openness of a large great room, the focal point of the home, perfect for family gatherings and entertainment. Its strategic position allows for a seamless flow into the dining area, making it ideal for hosting dinner parties or enjoying everyday meals.
The kitchen is a chef’s dream, with ample counter space, a convenient pantry, and a layout that allows for social cooking experiences. The adjacent utility room provides additional storage and functionality, keeping the home’s workspace tidy and efficient.
The master suite is a private oasis, offering a generous bedroom area, a luxurious master bath complete with a walk-in closet, and an additional porch, creating a serene retreat for relaxation.
Two more bedrooms, each with ample closet space, share access to a full bath, ensuring comfort and privacy for family or guests. These rooms can easily be adapted for various uses, such as home offices, craft rooms, or play areas, based on your lifestyle.
Completing this magnificent layout is the large garage, offering not just parking space but also room for hobbies or storage.
The La Espada plan, with a total under-roof area of 2624 sq. ft., including front and back porches, is designed to be both functional and aesthetically pleasing, ensuring that every square foot is utilized to its fullest potential to create a warm and inviting atmosphere in your new home.
Living Area
1,808 sq ft
Bedrooms
3
Bathrooms
2
Stories
1
Cars
2
Speak To Your New Custom Home Builder Today!
25+
Years Experience
3,000+
Homes Built
5
Office Locations
A+
BBB Rating
Make It Yours
Customize the La Espada
Every floor plan is a starting point, not a box. Work directly with our design team to personalize every detail of the La Espada to fit your land, your family, and your lifestyle - at a price that's clear from day one.
Cabinet styles and finishes
Flooring throughout
Countertops and backsplashes
Exterior colors and materials
Structural layout changes
Fixtures and hardware
Ceiling treatments
Porch and outdoor living
How It Works
Build the La Espada in 5 Simple Steps
From free site evaluation to move-in day. One team, one price, one beautiful home.
01
Free Site Evaluation
We assess your land for build-readiness including soil, utilities, and access.
02
Choose Your Plan
Select the La Espada or customize it. Bring your own plan too.
03
Get Clear Pricing
Transparent pricing with no hidden fees or surprises.
04
Build Begins
Our experienced team breaks ground with one dedicated point of contact.
05
Move In
Walk through your finished dream home and start making memories.
Take the Next Step
Get Details for the La Espada
Tell us where you want to build and we'll match you with your local team.
Mortgage Calculator
*Estimate only. Does not include taxes and insurance. WAC.
$
$
%
Estimated Monthly Payment
$2,213/mo
Common Questions
La Espada Floor Plan FAQ
Yes. Every Southwest Homes floor plan is a starting point. Work directly with our design team to personalize cabinet finishes, flooring, countertops, fixtures, exterior colors, and structural options. We adapt the La Espada to fit your land, your family, and your lifestyle.
No - traditional construction loans require you to pay interest. We work with lenders who offer construction-to-permanent financing that simplifies this - often with $0 down and no payments and no interest until the build is complete. *WAC
Pricing depends on the floor plan, location, lot conditions, and customizations you choose. We provide transparent pricing with no hidden fees. Contact us for a personalized quote based on your specific plan and land.
Every home is different - the time frame changes from permit approval to move-in, depending on the plan size, site conditions, local permitting timelines, and even weather conditions. Your project manager will give you a specific schedule during the planning phase.
We typically serve a 100-mile radius around each of our offices in San Antonio, Corpus Christi, Canton TX, and Springdale AR. If you're unsure whether your land is in our service area, call your nearest office and we'll let you know right away.
Yes. Southwest Homes offers a Bring Your Own Plan option. If you have a design you love, our team can review it and provide pricing to build it on your land. Learn more about Bring Your Own Plan.
Ready to Build the La Espada on Your Land?
No construction loan required. Transparent pricing. Free site evaluation. 25+ years and 3,000+ homes built.



