

*Plan may show available options and upgrades. Click to zoom. Scroll to zoom. Drag to pan.
Your Custom Home Floor Plan
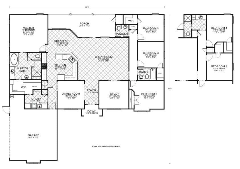
Lockhart B Floor Plan
4 Beds
2 Baths
2,427 Sq Ft
2 Cars
$0 Down - No Payments During Construction*
*With approved credit. No traditional construction loan required.
This elegant and spacious floor plan presents a perfect blend of modern design and comfortable living. Boasting approximately 2422 square feet of living area, it features a grand master suite with a luxurious bath and a large walk-in closet, ensuring a private retreat for homeowners. The heart of the home is the expansive great room with a 10-foot ceiling that seamlessly connects to the kitchen and breakfast area, making it ideal for entertaining and family gatherings.
The kitchen, a chef’s delight, includes ample counter space and a practical layout for cooking and socializing. A formal dining room with a 12-foot ceiling provides an exclusive space for dinner parties. The home also offers a study room, which can double as a home office or a quiet reading nook.
Three additional bedrooms with generous closet space are perfect for family or guests, with two additional bathrooms providing convenience and privacy. The utility room near the garage entry serves as a practical laundry and storage area.
The plan includes a sizable two-car garage, a welcoming front porch, and a rear porch perfect for enjoying quiet evenings outdoors. The house also features distinct architectural elements like varying ceiling heights and a thoughtful division of sleeping and living areas, all under a total under-roof area of 3077 square feet, promising a blend of comfort and style for a family to build a lifetime of memories.
Living Area
2,427 sq ft
Bedrooms
4
Bathrooms
2
Stories
1
Cars
2
Speak To Your New Custom Home Builder Today!
25+
Years Experience
3,000+
Homes Built
5
Office Locations
A+
BBB Rating
Make It Yours
Customize the Lockhart B
Every floor plan is a starting point, not a box. Work directly with our design team to personalize every detail of the Lockhart B to fit your land, your family, and your lifestyle - at a price that's clear from day one.
Cabinet styles and finishes
Flooring throughout
Countertops and backsplashes
Exterior colors and materials
Structural layout changes
Fixtures and hardware
Ceiling treatments
Porch and outdoor living
How It Works
Build the Lockhart B in 5 Simple Steps
From free site evaluation to move-in day. One team, one price, one beautiful home.
01
Free Site Evaluation
We assess your land for build-readiness including soil, utilities, and access.
02
Choose Your Plan
Select the Lockhart B or customize it. Bring your own plan too.
03
Get Clear Pricing
Transparent pricing with no hidden fees or surprises.
04
Build Begins
Our experienced team breaks ground with one dedicated point of contact.
05
Move In
Walk through your finished dream home and start making memories.
Take the Next Step
Get Details for the Lockhart B
Tell us where you want to build and we'll match you with your local team.
Mortgage Calculator
*Estimate only. Does not include taxes and insurance. WAC.
$
$
%
Estimated Monthly Payment
$2,213/mo
Common Questions
Lockhart B Floor Plan FAQ
Yes. Every Southwest Homes floor plan is a starting point. Work directly with our design team to personalize cabinet finishes, flooring, countertops, fixtures, exterior colors, and structural options. We adapt the Lockhart B to fit your land, your family, and your lifestyle.
No - traditional construction loans require you to pay interest. We work with lenders who offer construction-to-permanent financing that simplifies this - often with $0 down and no payments and no interest until the build is complete. *WAC
Pricing depends on the floor plan, location, lot conditions, and customizations you choose. We provide transparent pricing with no hidden fees. Contact us for a personalized quote based on your specific plan and land.
Every home is different - the time frame changes from permit approval to move-in, depending on the plan size, site conditions, local permitting timelines, and even weather conditions. Your project manager will give you a specific schedule during the planning phase.
We typically serve a 100-mile radius around each of our offices in San Antonio, Corpus Christi, Canton TX, and Springdale AR. If you're unsure whether your land is in our service area, call your nearest office and we'll let you know right away.
Yes. Southwest Homes offers a Bring Your Own Plan option. If you have a design you love, our team can review it and provide pricing to build it on your land. Learn more about Bring Your Own Plan.
Ready to Build the Lockhart B on Your Land?
No construction loan required. Transparent pricing. Free site evaluation. 25+ years and 3,000+ homes built.



