

*Plan may show available options and upgrades. Click to zoom. Scroll to zoom. Drag to pan.
Your Custom Home Floor Plan
Leyland Floor Plan
4 Beds
2.5 Baths
2,223 Sq Ft
$0 Down - No Payments During Construction*
*With approved credit. No traditional construction loan required.
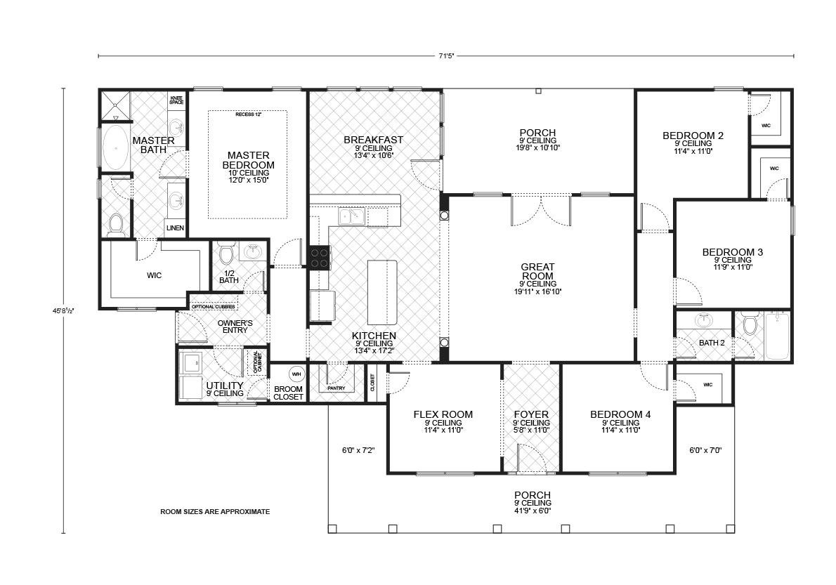
The Leyland floor plan is a well-appointed design that offers a balance of luxury and functionality, making it an attractive choice for those seeking to create a custom home with spacious and adaptable living areas. The plan features a sizable porch that leads into an elegant foyer, unfolding into a great room with a 9-foot ceiling, perfect for comfortable living and hosting guests.
The kitchen is a delight for those who love to cook and entertain, equipped with modern appliances, a pantry, and a central island that merges seamlessly with the breakfast nook, providing a casual dining space. A formal dining room adjacent to the kitchen allows for more traditional gatherings.
The master suite is a retreat within the home, offering a 10-foot ceiling, a large walk-in closet, and a master bath with all the amenities for a private spa-like experience. The home includes three additional bedrooms, each with ample closet space and easy access to the shared full bath, accommodating the needs of family and guests alike.
A flex room provides the flexibility for a home office, playroom, or additional bedroom, ensuring that the home can adapt to changing needs. The utility room, complete with a broom closet, enhances organization and leads to a spacious garage. With a total living area of 2,223 square feet, the Leyland floor plan is a thoughtful combination of grandeur and practicality, perfectly suited to those looking to build a home that is both expansive and welcoming.
Living Area
2,223 sq ft
Bedrooms
4
Bathrooms
2.5
Stories
1
Speak To Your New Custom Home Builder Today!
25+
Years Experience
3,000+
Homes Built
5
Office Locations
A+
BBB Rating
Make It Yours
Customize the Leyland
Every floor plan is a starting point, not a box. Work directly with our design team to personalize every detail of the Leyland to fit your land, your family, and your lifestyle - at a price that's clear from day one.
Cabinet styles and finishes
Flooring throughout
Countertops and backsplashes
Exterior colors and materials
Structural layout changes
Fixtures and hardware
Ceiling treatments
Porch and outdoor living
How It Works
Build the Leyland in 5 Simple Steps
From free site evaluation to move-in day. One team, one price, one beautiful home.
01
Free Site Evaluation
We assess your land for build-readiness including soil, utilities, and access.
02
Choose Your Plan
Select the Leyland or customize it. Bring your own plan too.
03
Get Clear Pricing
Transparent pricing with no hidden fees or surprises.
04
Build Begins
Our experienced team breaks ground with one dedicated point of contact.
05
Move In
Walk through your finished dream home and start making memories.
Take the Next Step
Get Details for the Leyland
Tell us where you want to build and we'll match you with your local team.
Mortgage Calculator
*Estimate only. Does not include taxes and insurance. WAC.
$
$
%
Estimated Monthly Payment
$2,213/mo
Common Questions
Leyland Floor Plan FAQ
Yes. Every Southwest Homes floor plan is a starting point. Work directly with our design team to personalize cabinet finishes, flooring, countertops, fixtures, exterior colors, and structural options. We adapt the Leyland to fit your land, your family, and your lifestyle.
No - traditional construction loans require you to pay interest. We work with lenders who offer construction-to-permanent financing that simplifies this - often with $0 down and no payments and no interest until the build is complete. *WAC
Pricing depends on the floor plan, location, lot conditions, and customizations you choose. We provide transparent pricing with no hidden fees. Contact us for a personalized quote based on your specific plan and land.
Every home is different - the time frame changes from permit approval to move-in, depending on the plan size, site conditions, local permitting timelines, and even weather conditions. Your project manager will give you a specific schedule during the planning phase.
We typically serve a 100-mile radius around each of our offices in San Antonio, Corpus Christi, Canton TX, and Springdale AR. If you're unsure whether your land is in our service area, call your nearest office and we'll let you know right away.
Yes. Southwest Homes offers a Bring Your Own Plan option. If you have a design you love, our team can review it and provide pricing to build it on your land. Learn more about Bring Your Own Plan.
Ready to Build the Leyland on Your Land?
No construction loan required. Transparent pricing. Free site evaluation. 25+ years and 3,000+ homes built.



