

*Plan may show available options and upgrades. Click to zoom. Scroll to zoom. Drag to pan.
Your Custom Home Floor Plan
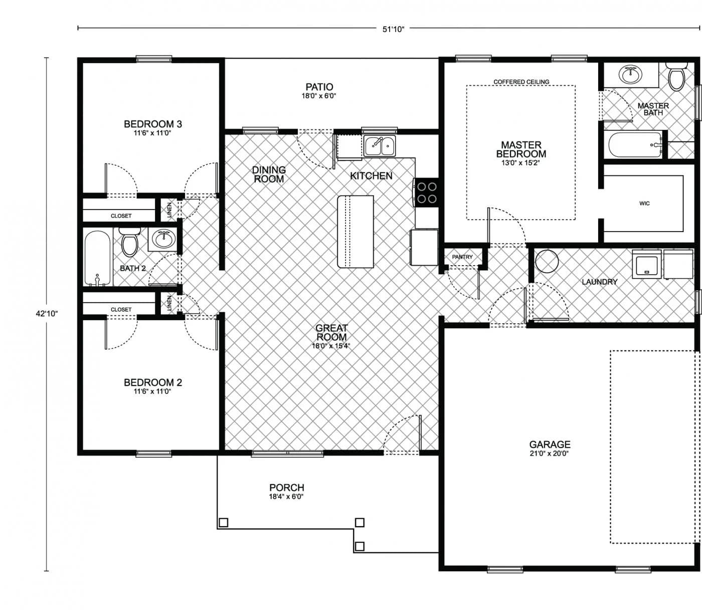
Driscoll Floor Plan
3 Beds
2 Baths
1,383 Sq Ft
2 Cars
$0 Down - No Payments During Construction*
*With approved credit. No traditional construction loan required.
This meticulously crafted floor plan is ideal for those who desire a blend of modern design and homely comfort in their custom home. The welcoming porch leads into a spacious great room, the centerpiece of the home, with ample space for relaxation and socializing. A coffered ceiling in the master bedroom adds an element of architectural sophistication, creating a luxurious retreat complete with a private master bath and a large walk-in closet.
The kitchen, strategically located at the heart of the home, is a chef’s delight, featuring modern appliances, a pantry for extra storage, and an efficient layout that opens up to the dining area, making meal preparation and entertaining a seamless experience. The adjacent patio offers additional space for outdoor dining and leisure, extending the living area into the natural surroundings.
Two additional bedrooms provide comfortable accommodations for family or guests, each with convenient access to a shared full bath. A dedicated laundry room adds to the home’s practicality, ensuring that daily routines are handled with ease.
With a total living area of 1,383 square feet, this floor plan is thoughtfully designed to optimize space without compromising on style or functionality, making it an exceptional foundation for your new home.
Living Area
1,383 sq ft
Bedrooms
3
Bathrooms
2
Stories
1
Cars
2
Speak To Your New Custom Home Builder Today!
25+
Years Experience
3,000+
Homes Built
5
Office Locations
A+
BBB Rating
Make It Yours
Customize the Driscoll
Every floor plan is a starting point, not a box. Work directly with our design team to personalize every detail of the Driscoll to fit your land, your family, and your lifestyle - at a price that's clear from day one.
Cabinet styles and finishes
Flooring throughout
Countertops and backsplashes
Exterior colors and materials
Structural layout changes
Fixtures and hardware
Ceiling treatments
Porch and outdoor living
How It Works
Build the Driscoll in 5 Simple Steps
From free site evaluation to move-in day. One team, one price, one beautiful home.
01
Free Site Evaluation
We assess your land for build-readiness including soil, utilities, and access.
02
Choose Your Plan
Select the Driscoll or customize it. Bring your own plan too.
03
Get Clear Pricing
Transparent pricing with no hidden fees or surprises.
04
Build Begins
Our experienced team breaks ground with one dedicated point of contact.
05
Move In
Walk through your finished dream home and start making memories.
Take the Next Step
Get Details for the Driscoll
Tell us where you want to build and we'll match you with your local team.
Mortgage Calculator
*Estimate only. Does not include taxes and insurance. WAC.
$
$
%
Estimated Monthly Payment
$2,213/mo
Common Questions
Driscoll Floor Plan FAQ
Yes. Every Southwest Homes floor plan is a starting point. Work directly with our design team to personalize cabinet finishes, flooring, countertops, fixtures, exterior colors, and structural options. We adapt the Driscoll to fit your land, your family, and your lifestyle.
No - traditional construction loans require you to pay interest. We work with lenders who offer construction-to-permanent financing that simplifies this - often with $0 down and no payments and no interest until the build is complete. *WAC
Pricing depends on the floor plan, location, lot conditions, and customizations you choose. We provide transparent pricing with no hidden fees. Contact us for a personalized quote based on your specific plan and land.
Every home is different - the time frame changes from permit approval to move-in, depending on the plan size, site conditions, local permitting timelines, and even weather conditions. Your project manager will give you a specific schedule during the planning phase.
We typically serve a 100-mile radius around each of our offices in San Antonio, Corpus Christi, Canton TX, and Springdale AR. If you're unsure whether your land is in our service area, call your nearest office and we'll let you know right away.
Yes. Southwest Homes offers a Bring Your Own Plan option. If you have a design you love, our team can review it and provide pricing to build it on your land. Learn more about Bring Your Own Plan.
Ready to Build the Driscoll on Your Land?
No construction loan required. Transparent pricing. Free site evaluation. 25+ years and 3,000+ homes built.



