

*Plan may show available options and upgrades. Click to zoom. Scroll to zoom. Drag to pan.
Your Custom Home Floor Plan
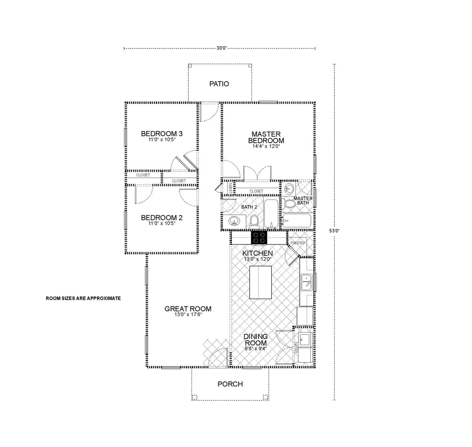
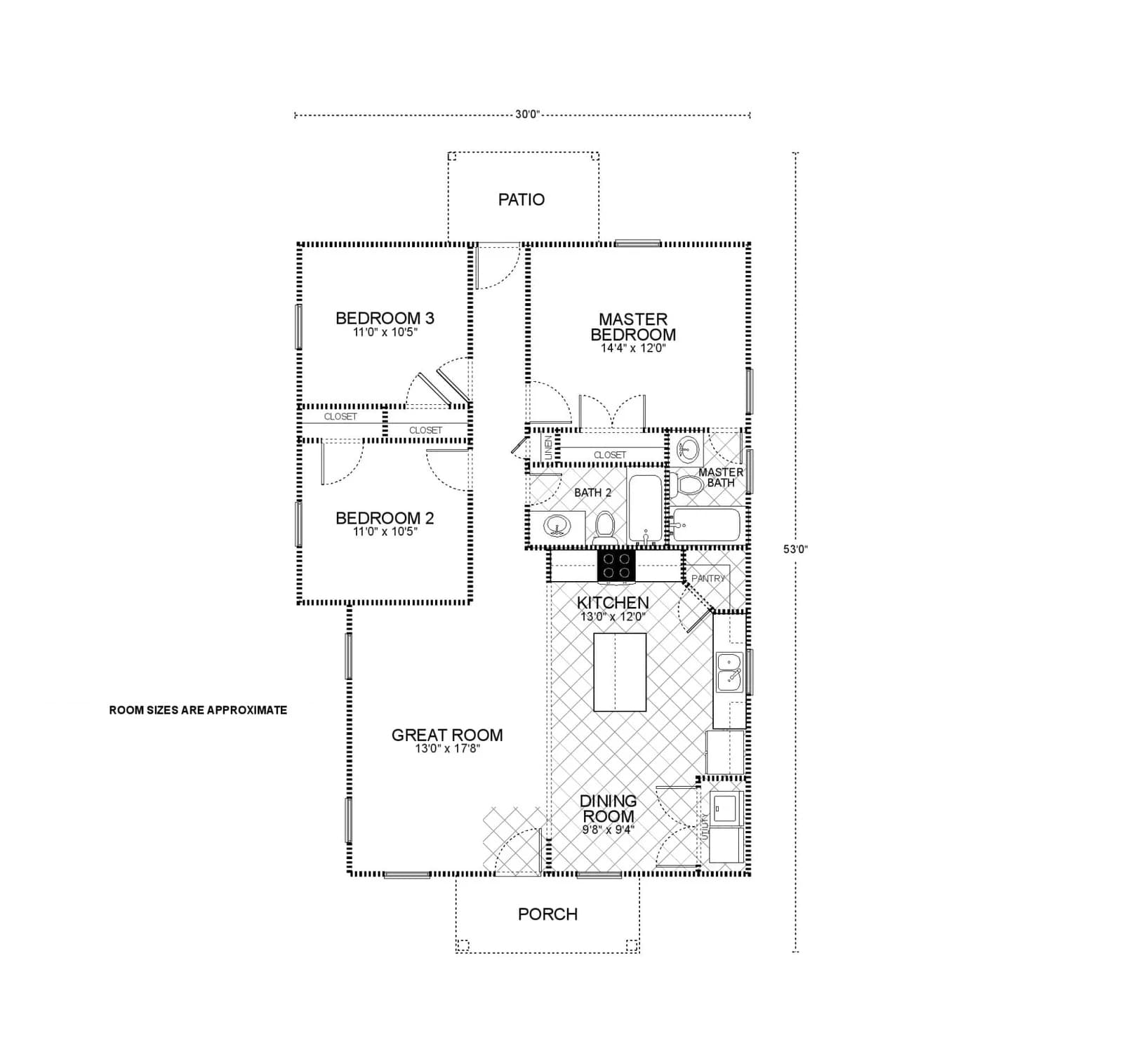
Henderson B Floor Plan
3 Beds
2 Baths
1,200 Sq Ft
$0 Down - No Payments During Construction*
*With approved credit. No traditional construction loan required.
The Henderson floor plan is a well-appointed design, encompassing 1200 square feet of living space, carefully crafted to provide a comfortable and efficient home environment. This plan is an excellent choice for those seeking a harmonious blend of function and comfort.
Upon entering, the layout leads to a spacious great room, measuring 13’0″ x 17’8″, ideal for daily family life and for entertaining guests. The great room’s open concept flows into a practical dining area of 9’8″ x 9’4″, positioned conveniently next to the kitchen. The kitchen itself, sized at 13’0″ x 12’0″, features a smart layout that optimizes workspace and storage, making it perfect for culinary enthusiasts.
The master bedroom, with its dimensions of 14’4″ x 12’0″, offers a private and serene retreat, complete with an en suite bathroom, ensuring a comfortable and secluded space for relaxation. Two additional bedrooms, each 11’0″ x 10’5″, provide ample space for family or guests, and are supported by a second full bathroom, illustrating the home’s thoughtful consideration for both privacy and convenience.
This floor plan also includes a patio, which extends the living space outdoors and offers a delightful area for relaxation or social gatherings in the open air. With the inclusion of a porch and a patio, the total under-roof area comes to 1320 square feet, providing additional outdoor leisure space. The Henderson floor plan strikes a balance between open communal areas and intimate private spaces, ensuring that it will be a comfortable and inviting home.
Living Area
1,200 sq ft
Bedrooms
3
Bathrooms
2
Stories
1
Speak To Your New Custom Home Builder Today!
25+
Years Experience
3,000+
Homes Built
5
Office Locations
A+
BBB Rating
Make It Yours
Customize the Henderson B
Every floor plan is a starting point, not a box. Work directly with our design team to personalize every detail of the Henderson B to fit your land, your family, and your lifestyle - at a price that's clear from day one.
Cabinet styles and finishes
Flooring throughout
Countertops and backsplashes
Exterior colors and materials
Structural layout changes
Fixtures and hardware
Ceiling treatments
Porch and outdoor living
How It Works
Build the Henderson B in 5 Simple Steps
From free site evaluation to move-in day. One team, one price, one beautiful home.
01
Free Site Evaluation
We assess your land for build-readiness including soil, utilities, and access.
02
Choose Your Plan
Select the Henderson B or customize it. Bring your own plan too.
03
Get Clear Pricing
Transparent pricing with no hidden fees or surprises.
04
Build Begins
Our experienced team breaks ground with one dedicated point of contact.
05
Move In
Walk through your finished dream home and start making memories.
Take the Next Step
Get Details for the Henderson B
Tell us where you want to build and we'll match you with your local team.
Mortgage Calculator
*Estimate only. Does not include taxes and insurance. WAC.
$
$
%
Estimated Monthly Payment
$2,213/mo
Common Questions
Henderson B Floor Plan FAQ
Yes. Every Southwest Homes floor plan is a starting point. Work directly with our design team to personalize cabinet finishes, flooring, countertops, fixtures, exterior colors, and structural options. We adapt the Henderson B to fit your land, your family, and your lifestyle.
No - traditional construction loans require you to pay interest. We work with lenders who offer construction-to-permanent financing that simplifies this - often with $0 down and no payments and no interest until the build is complete. *WAC
Pricing depends on the floor plan, location, lot conditions, and customizations you choose. We provide transparent pricing with no hidden fees. Contact us for a personalized quote based on your specific plan and land.
Every home is different - the time frame changes from permit approval to move-in, depending on the plan size, site conditions, local permitting timelines, and even weather conditions. Your project manager will give you a specific schedule during the planning phase.
We typically serve a 100-mile radius around each of our offices in San Antonio, Corpus Christi, Canton TX, and Springdale AR. If you're unsure whether your land is in our service area, call your nearest office and we'll let you know right away.
Yes. Southwest Homes offers a Bring Your Own Plan option. If you have a design you love, our team can review it and provide pricing to build it on your land. Learn more about Bring Your Own Plan.
Ready to Build the Henderson B on Your Land?
No construction loan required. Transparent pricing. Free site evaluation. 25+ years and 3,000+ homes built.



