

*Plan may show available options and upgrades. Click to zoom. Scroll to zoom. Drag to pan.
Your Custom Home Floor Plan
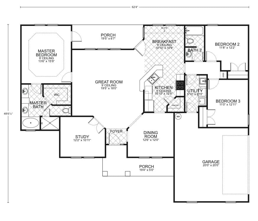
Driftwood A Floor Plan
3 Beds
2 Baths
1,853 Sq Ft
2 Cars
$0 Down - No Payments During Construction*
*With approved credit. No traditional construction loan required.
This elegantly designed floor plan, perfect for those looking to create their dream custom home, offers a seamless blend of sophistication and comfort. The welcoming front porch ushers you into a well-appointed foyer that immediately conveys a sense of warmth and openness.
At the heart of the home lies the great room, complete with a 9-foot ceiling that enhances its spacious feel, making it an ideal setting for memorable gatherings and cozy family evenings. The great room flows effortlessly into a well-designed kitchen that features modern amenities, a practical island for additional counter space, and a convenient pantry. The adjacent breakfast nook offers a sunlit area for casual dining and enjoying serene mornings.
A formal dining room is thoughtfully positioned for hosting elegant dinners and special occasions, while the nearby study provides a quiet retreat for work or reading. The master bedroom is a private haven with its own 9-foot ceiling, creating an airy retreat. It boasts a luxurious master bath with dual vanities and a large walk-in closet, ensuring a peaceful and organized start to the day.
Two additional bedrooms are strategically placed to afford privacy and comfort, with easy access to the second full bath. The utility room is efficiently located off the kitchen, making household tasks discreet and manageable.
Outside, a back porch provides an extended living area to enjoy the outdoors, while the sizable garage accommodates vehicles and storage needs. With a total living area of 1,853 square feet, this floor plan is crafted to offer a balance of elegant and casual living spaces, making it an excellent choice for a family seeking both charm and functionality in their new home.
Living Area
1,853 sq ft
Bedrooms
3
Bathrooms
2
Stories
1
Cars
2
Speak To Your New Custom Home Builder Today!
25+
Years Experience
3,000+
Homes Built
5
Office Locations
A+
BBB Rating
Make It Yours
Customize the Driftwood A
Every floor plan is a starting point, not a box. Work directly with our design team to personalize every detail of the Driftwood A to fit your land, your family, and your lifestyle - at a price that's clear from day one.
Cabinet styles and finishes
Flooring throughout
Countertops and backsplashes
Exterior colors and materials
Structural layout changes
Fixtures and hardware
Ceiling treatments
Porch and outdoor living
How It Works
Build the Driftwood A in 5 Simple Steps
From free site evaluation to move-in day. One team, one price, one beautiful home.
01
Free Site Evaluation
We assess your land for build-readiness including soil, utilities, and access.
02
Choose Your Plan
Select the Driftwood A or customize it. Bring your own plan too.
03
Get Clear Pricing
Transparent pricing with no hidden fees or surprises.
04
Build Begins
Our experienced team breaks ground with one dedicated point of contact.
05
Move In
Walk through your finished dream home and start making memories.
Take the Next Step
Get Details for the Driftwood A
Tell us where you want to build and we'll match you with your local team.
Mortgage Calculator
*Estimate only. Does not include taxes and insurance. WAC.
$
$
%
Estimated Monthly Payment
$2,213/mo
Common Questions
Driftwood A Floor Plan FAQ
Yes. Every Southwest Homes floor plan is a starting point. Work directly with our design team to personalize cabinet finishes, flooring, countertops, fixtures, exterior colors, and structural options. We adapt the Driftwood A to fit your land, your family, and your lifestyle.
No - traditional construction loans require you to pay interest. We work with lenders who offer construction-to-permanent financing that simplifies this - often with $0 down and no payments and no interest until the build is complete. *WAC
Pricing depends on the floor plan, location, lot conditions, and customizations you choose. We provide transparent pricing with no hidden fees. Contact us for a personalized quote based on your specific plan and land.
Every home is different - the time frame changes from permit approval to move-in, depending on the plan size, site conditions, local permitting timelines, and even weather conditions. Your project manager will give you a specific schedule during the planning phase.
We typically serve a 100-mile radius around each of our offices in San Antonio, Corpus Christi, Canton TX, and Springdale AR. If you're unsure whether your land is in our service area, call your nearest office and we'll let you know right away.
Yes. Southwest Homes offers a Bring Your Own Plan option. If you have a design you love, our team can review it and provide pricing to build it on your land. Learn more about Bring Your Own Plan.
Ready to Build the Driftwood A on Your Land?
No construction loan required. Transparent pricing. Free site evaluation. 25+ years and 3,000+ homes built.



