

*Plan may show available options and upgrades. Click to zoom. Scroll to zoom. Drag to pan.
Your Custom Home Floor Plan
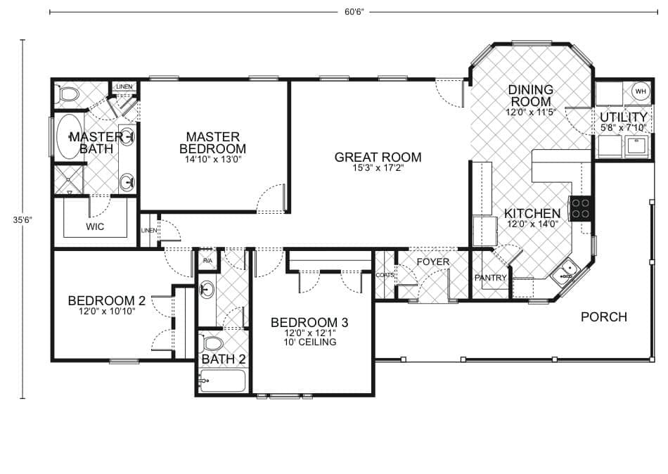
San Antonio Floor Plan
3 Beds
2 Baths
1,563 Sq Ft
$0 Down - No Payments During Construction*
*With approved credit. No traditional construction loan required.
Introducing the San Antonio floor plan, an embodiment of modern living combined with comfort, designed for those looking to build a custom home with a warm, welcoming atmosphere. The plan boasts a spacious living area of 1563 sq. ft., with a total under-roof space of 1912 sq. ft., including a charming front porch.
As you enter through the foyer, you are greeted by a large great room with ample space for relaxation and family gatherings. The great room’s open layout ensures it is the heart of the home, with a layout conducive to both lively entertainment and peaceful evenings.
The kitchen, featuring modern amenities, is complemented by a convenient pantry and an adjacent dining room, making it an ideal space for cooking and enjoying meals. The utility room is strategically placed near the kitchen for efficiency and serves as a multipurpose space for laundry and storage.
The master suite is a haven of tranquility, offering a generous bedroom, a well-appointed master bath, and a walk-in closet. The thoughtful placement of the master suite provides a private escape from the main living areas.
Two additional bedrooms are perfectly sized for comfort, each with easy access to the second full bathroom, ensuring functionality and privacy for family members or guests.
Completing this layout, the expansive porch extends the living space outdoors, providing an inviting area to enjoy the surrounding landscape and entertain guests.
The San Antonio floor plan is not just a blueprint; it is the foundation for a home filled with comfort, functionality, and cherished memories for years to come.
Living Area
1,563 sq ft
Bedrooms
3
Bathrooms
2
Stories
1
Speak To Your New Custom Home Builder Today!
25+
Years Experience
3,000+
Homes Built
5
Office Locations
A+
BBB Rating
Make It Yours
Customize the San Antonio
Every floor plan is a starting point, not a box. Work directly with our design team to personalize every detail of the San Antonio to fit your land, your family, and your lifestyle - at a price that's clear from day one.
Cabinet styles and finishes
Flooring throughout
Countertops and backsplashes
Exterior colors and materials
Structural layout changes
Fixtures and hardware
Ceiling treatments
Porch and outdoor living
How It Works
Build the San Antonio in 5 Simple Steps
From free site evaluation to move-in day. One team, one price, one beautiful home.
01
Free Site Evaluation
We assess your land for build-readiness including soil, utilities, and access.
02
Choose Your Plan
Select the San Antonio or customize it. Bring your own plan too.
03
Get Clear Pricing
Transparent pricing with no hidden fees or surprises.
04
Build Begins
Our experienced team breaks ground with one dedicated point of contact.
05
Move In
Walk through your finished dream home and start making memories.
Take the Next Step
Get Details for the San Antonio
Tell us where you want to build and we'll match you with your local team.
Mortgage Calculator
*Estimate only. Does not include taxes and insurance. WAC.
$
$
%
Estimated Monthly Payment
$2,213/mo
Common Questions
San Antonio Floor Plan FAQ
Yes. Every Southwest Homes floor plan is a starting point. Work directly with our design team to personalize cabinet finishes, flooring, countertops, fixtures, exterior colors, and structural options. We adapt the San Antonio to fit your land, your family, and your lifestyle.
No - traditional construction loans require you to pay interest. We work with lenders who offer construction-to-permanent financing that simplifies this - often with $0 down and no payments and no interest until the build is complete. *WAC
Pricing depends on the floor plan, location, lot conditions, and customizations you choose. We provide transparent pricing with no hidden fees. Contact us for a personalized quote based on your specific plan and land.
Every home is different - the time frame changes from permit approval to move-in, depending on the plan size, site conditions, local permitting timelines, and even weather conditions. Your project manager will give you a specific schedule during the planning phase.
We typically serve a 100-mile radius around each of our offices in San Antonio, Corpus Christi, Canton TX, and Springdale AR. If you're unsure whether your land is in our service area, call your nearest office and we'll let you know right away.
Yes. Southwest Homes offers a Bring Your Own Plan option. If you have a design you love, our team can review it and provide pricing to build it on your land. Learn more about Bring Your Own Plan.
Ready to Build the San Antonio on Your Land?
No construction loan required. Transparent pricing. Free site evaluation. 25+ years and 3,000+ homes built.



