

*Plan may show available options and upgrades. Click to zoom. Scroll to zoom. Drag to pan.
Your Custom Home Floor Plan
Hillcrest Floor Plan
3 Beds
2.5 Baths
2,200 Sq Ft
2 Cars
$0 Down - No Payments During Construction*
*With approved credit. No traditional construction loan required.
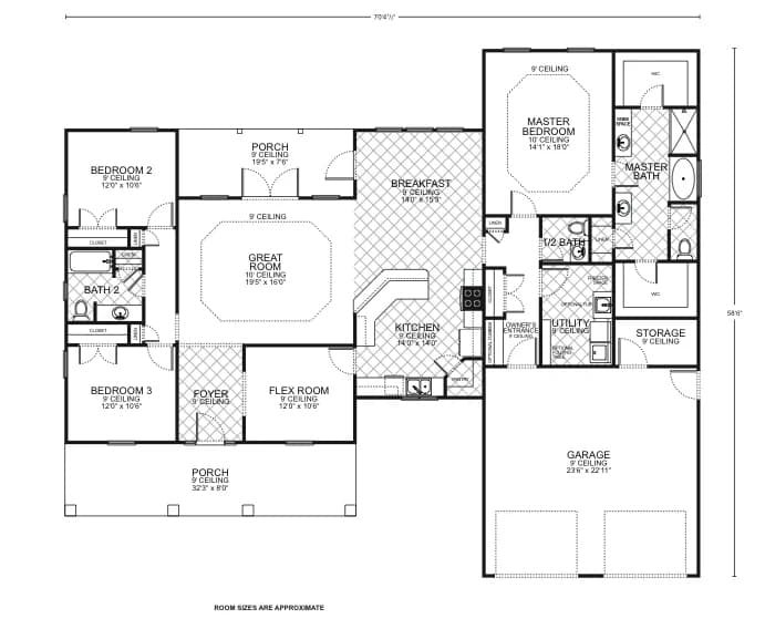
The Hillcrest floor plan is a testament to modern architectural design, offering a blend of comfort, style, and practicality that makes it an ideal choice for your custom home. The floor plan reveals a spacious great room with a 9-foot ceiling, the central hub of the home for family gatherings and entertainment, accentuated by an abundance of natural light.
The kitchen is a chef’s dream, featuring an efficient layout, modern appliances, a pantry, and a convenient owner’s entrance. It flows into a cozy breakfast area, providing a perfect spot for informal meals, with easy access to the outdoor porch for an open-air dining experience. The plan also includes a flex room that can serve as an extra bedroom, home office, or den, catering to various needs and lifestyles.
The master bedroom, with its own 9-foot ceiling, is a private sanctuary designed to offer tranquility and comfort. It boasts a luxurious en-suite master bath with a spacious walk-in closet. Two additional bedrooms, each with ample closet space, share a full bathroom and are positioned to maximize privacy for family members or guests.
The utility room provides a discrete area for laundry and storage, enhancing the home’s functionality. With an expansive garage and additional storage space, the Hillcrest floor plan thoughtfully addresses all aspects of daily living.
This plan, encompassing a total living area of 2,200 square feet, is carefully crafted to provide an elegant and efficient living space, making it an excellent canvas for those seeking to create a home that is both inviting and practical.
Living Area
2,200 sq ft
Bedrooms
3
Bathrooms
2.5
Stories
1
Cars
2
Speak To Your New Custom Home Builder Today!
25+
Years Experience
3,000+
Homes Built
5
Office Locations
A+
BBB Rating
Make It Yours
Customize the Hillcrest
Every floor plan is a starting point, not a box. Work directly with our design team to personalize every detail of the Hillcrest to fit your land, your family, and your lifestyle - at a price that's clear from day one.
Cabinet styles and finishes
Flooring throughout
Countertops and backsplashes
Exterior colors and materials
Structural layout changes
Fixtures and hardware
Ceiling treatments
Porch and outdoor living
How It Works
Build the Hillcrest in 5 Simple Steps
From free site evaluation to move-in day. One team, one price, one beautiful home.
01
Free Site Evaluation
We assess your land for build-readiness including soil, utilities, and access.
02
Choose Your Plan
Select the Hillcrest or customize it. Bring your own plan too.
03
Get Clear Pricing
Transparent pricing with no hidden fees or surprises.
04
Build Begins
Our experienced team breaks ground with one dedicated point of contact.
05
Move In
Walk through your finished dream home and start making memories.
Take the Next Step
Get Details for the Hillcrest
Tell us where you want to build and we'll match you with your local team.
Mortgage Calculator
*Estimate only. Does not include taxes and insurance. WAC.
$
$
%
Estimated Monthly Payment
$2,213/mo
Common Questions
Hillcrest Floor Plan FAQ
Yes. Every Southwest Homes floor plan is a starting point. Work directly with our design team to personalize cabinet finishes, flooring, countertops, fixtures, exterior colors, and structural options. We adapt the Hillcrest to fit your land, your family, and your lifestyle.
No - traditional construction loans require you to pay interest. We work with lenders who offer construction-to-permanent financing that simplifies this - often with $0 down and no payments and no interest until the build is complete. *WAC
Pricing depends on the floor plan, location, lot conditions, and customizations you choose. We provide transparent pricing with no hidden fees. Contact us for a personalized quote based on your specific plan and land.
Every home is different - the time frame changes from permit approval to move-in, depending on the plan size, site conditions, local permitting timelines, and even weather conditions. Your project manager will give you a specific schedule during the planning phase.
We typically serve a 100-mile radius around each of our offices in San Antonio, Corpus Christi, Canton TX, and Springdale AR. If you're unsure whether your land is in our service area, call your nearest office and we'll let you know right away.
Yes. Southwest Homes offers a Bring Your Own Plan option. If you have a design you love, our team can review it and provide pricing to build it on your land. Learn more about Bring Your Own Plan.
Ready to Build the Hillcrest on Your Land?
No construction loan required. Transparent pricing. Free site evaluation. 25+ years and 3,000+ homes built.



