
Hillcrest B
3 Bed 2.5 Bath 2,200 sqft
View Plan

*Plan may show available options and upgrades. Click to zoom. Scroll to zoom. Drag to pan.
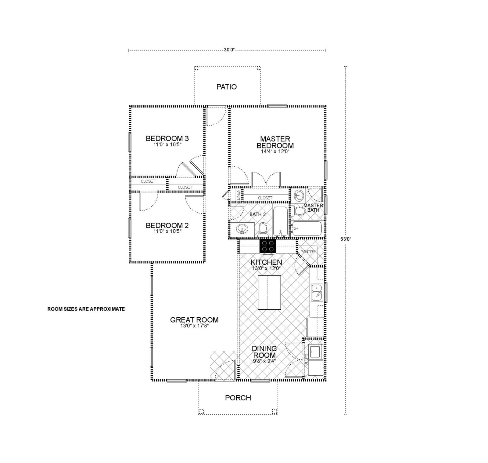
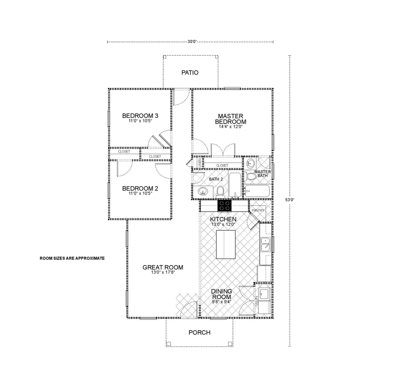
The Henderson-A floor plan offers a streamlined and comfortable living experience, spreading across 1200 square feet. This home is perfectly suited for those who value both cozy living and efficient use of space.
Entering the home, the great room serves as the central hub, with a generous area of 13’0″ by 17’8″, ideal for family activities and entertainment. Adjacent to this space is the dining room, providing a pleasant 9’8″ by 9’4″ area for meals and gatherings. The kitchen, with dimensions of 13’0″ by 12’0″, is smartly designed to be both functional and aesthetically pleasing, featuring sufficient space for meal preparation and storage.
The master bedroom, located for privacy, is a comfortable retreat with a size of 14’4″ by 12’0″, complete with an adjoining master bath for convenience and ease. Two additional bedrooms, each measuring 11’0″ by 10’5″, offer ample space for family, guests, or a home office, each with easy access to the second full bathroom.
The home’s thoughtful design includes a patio, which extends the living space outdoors, perfect for relaxation or entertaining in the open air. With a total under-roof area of 1320 square feet, including the porch and patio, the Henderson-A floor plan presents a balance of inviting communal areas and private spaces, making it an attractive choice for those seeking a practical and charming home.
Every floor plan is a starting point, not a box. Work directly with our design team to personalize every detail of the Henderson A to fit your land, your family, and your lifestyle - at a price that's clear from day one.
From free site evaluation to move-in day. One team, one price, one beautiful home.
We assess your land for build-readiness including soil, utilities, and access.
Select the Henderson A or customize it. Bring your own plan too.
Transparent pricing with no hidden fees or surprises.
Our experienced team breaks ground with one dedicated point of contact.
Walk through your finished dream home and start making memories.
Tell us where you want to build and we'll match you with your local team.
*Estimate only. Does not include taxes and insurance. WAC.
No construction loan required. Transparent pricing. Free site evaluation. 25+ years and 3,000+ homes built.
Fill out the form below and your local builder rep will send you full pricing and specs.