

*Plan may show available options and upgrades. Click to zoom. Scroll to zoom. Drag to pan.
Your Custom Home Floor Plan
Madison Floor Plan
3 Beds
2 Baths
1,230 Sq Ft
$0 Down - No Payments During Construction*
*With approved credit. No traditional construction loan required.
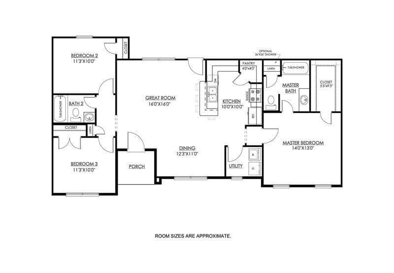
The Madison floor plan is a well-organized and inviting design, featuring a living area of 1230 square feet, perfectly suited for families or individuals seeking a combination of comfort and functionality.
As you enter the home, the great room stands out with its ample space, measuring 16’0″ x 16’0″, which makes it an ideal setting for family time and entertainment. Adjacent to the great room is the dining area, at 12’3″ x 11’0″, providing a comfortable setting for meals. The kitchen, with a size of 10’0″ x 10’0″, is efficiently designed with a pantry for extra storage, making it a functional and inviting space for cooking and socializing.
The master bedroom offers a private retreat at 14’0″ x 13’0″, complemented by a master bath and a sizable closet, ensuring a peaceful and organized personal space. Two additional bedrooms, each 11’3″ x 10’0″, offer comfortable accommodations for family members or guests, with a second bathroom conveniently located for accessibility.
The utility room is sensibly placed to serve as a functional area for laundry and storage, contributing to the home’s overall practicality. Additionally, the porch provides an outdoor area for relaxation and enjoyment of the surroundings.
With a total under-roof area of 1271 square feet, including the porch, the Madison floor plan is designed to maximize living space without compromising on style or comfort, making it an appealing option for a cozy and modern home.
Living Area
1,230 sq ft
Bedrooms
3
Bathrooms
2
Stories
1
Speak To Your New Custom Home Builder Today!
25+
Years Experience
3,000+
Homes Built
5
Office Locations
A+
BBB Rating
Make It Yours
Customize the Madison
Every floor plan is a starting point, not a box. Work directly with our design team to personalize every detail of the Madison to fit your land, your family, and your lifestyle - at a price that's clear from day one.
Cabinet styles and finishes
Flooring throughout
Countertops and backsplashes
Exterior colors and materials
Structural layout changes
Fixtures and hardware
Ceiling treatments
Porch and outdoor living
How It Works
Build the Madison in 5 Simple Steps
From free site evaluation to move-in day. One team, one price, one beautiful home.
01
Free Site Evaluation
We assess your land for build-readiness including soil, utilities, and access.
02
Choose Your Plan
Select the Madison or customize it. Bring your own plan too.
03
Get Clear Pricing
Transparent pricing with no hidden fees or surprises.
04
Build Begins
Our experienced team breaks ground with one dedicated point of contact.
05
Move In
Walk through your finished dream home and start making memories.
Take the Next Step
Get Details for the Madison
Tell us where you want to build and we'll match you with your local team.
Mortgage Calculator
*Estimate only. Does not include taxes and insurance. WAC.
$
$
%
Estimated Monthly Payment
$2,213/mo
Common Questions
Madison Floor Plan FAQ
Yes. Every Southwest Homes floor plan is a starting point. Work directly with our design team to personalize cabinet finishes, flooring, countertops, fixtures, exterior colors, and structural options. We adapt the Madison to fit your land, your family, and your lifestyle.
No - traditional construction loans require you to pay interest. We work with lenders who offer construction-to-permanent financing that simplifies this - often with $0 down and no payments and no interest until the build is complete. *WAC
Pricing depends on the floor plan, location, lot conditions, and customizations you choose. We provide transparent pricing with no hidden fees. Contact us for a personalized quote based on your specific plan and land.
Every home is different - the time frame changes from permit approval to move-in, depending on the plan size, site conditions, local permitting timelines, and even weather conditions. Your project manager will give you a specific schedule during the planning phase.
We typically serve a 100-mile radius around each of our offices in San Antonio, Corpus Christi, Canton TX, and Springdale AR. If you're unsure whether your land is in our service area, call your nearest office and we'll let you know right away.
Yes. Southwest Homes offers a Bring Your Own Plan option. If you have a design you love, our team can review it and provide pricing to build it on your land. Learn more about Bring Your Own Plan.
Ready to Build the Madison on Your Land?
No construction loan required. Transparent pricing. Free site evaluation. 25+ years and 3,000+ homes built.



