

*Plan may show available options and upgrades. Click to zoom. Scroll to zoom. Drag to pan.
Your Custom Home Floor Plan
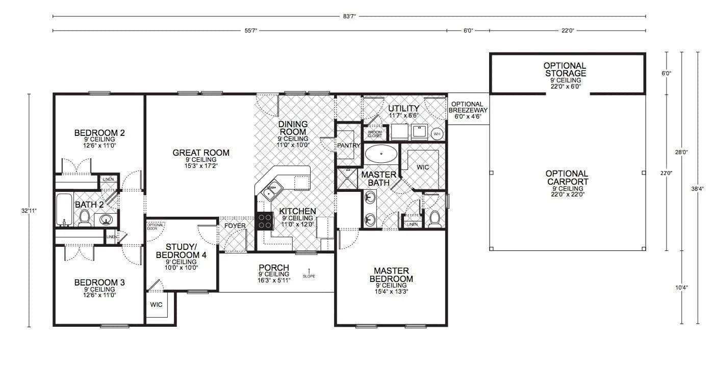
Durango Classic Floor Plan
4 Beds
2 Baths
1,632 Sq Ft
$0 Down - No Payments During Construction*
*With approved credit. No traditional construction loan required.
Introducing the Durango Classic, a floor plan that perfectly balances elegance with practicality, ideal for crafting your custom home. The inviting porch leads you into a spacious foyer that opens to a great room with a 9-foot ceiling, offering a vast space for both family gatherings and refined entertainment.
The kitchen is a chef’s delight, with ample countertop space, a convenient pantry, and an island that is perfect for meal prep and casual dining. The adjoining dining room provides a seamless space for enjoyable meals with a view of the outdoors. For those who need a home office or an extra bedroom, the study room offers flexibility to fit your lifestyle needs.
The master bedroom suite is designed as a private retreat with a 9-foot ceiling, featuring a large walk-in closet and an en-suite master bath equipped with modern amenities for a luxurious feel. Two additional bedrooms provide comfortable living space and are conveniently located near the second full bathroom, perfect for family or guests.
An optional carport and storage area, accessible via an optional breezeway, offer additional space and functionality to the home. With a total living area of 1,632 square feet, this home is thoughtfully designed to maximize space and provide a comfortable living environment with a classic touch. The Durango Classic is an excellent foundation for your new home, blending timeless design with modern living.
Living Area
1,632 sq ft
Bedrooms
4
Bathrooms
2
Stories
1
Speak To Your New Custom Home Builder Today!
25+
Years Experience
3,000+
Homes Built
5
Office Locations
A+
BBB Rating
Make It Yours
Customize the Durango Classic
Every floor plan is a starting point, not a box. Work directly with our design team to personalize every detail of the Durango Classic to fit your land, your family, and your lifestyle - at a price that's clear from day one.
Cabinet styles and finishes
Flooring throughout
Countertops and backsplashes
Exterior colors and materials
Structural layout changes
Fixtures and hardware
Ceiling treatments
Porch and outdoor living
How It Works
Build the Durango Classic in 5 Simple Steps
From free site evaluation to move-in day. One team, one price, one beautiful home.
01
Free Site Evaluation
We assess your land for build-readiness including soil, utilities, and access.
02
Choose Your Plan
Select the Durango Classic or customize it. Bring your own plan too.
03
Get Clear Pricing
Transparent pricing with no hidden fees or surprises.
04
Build Begins
Our experienced team breaks ground with one dedicated point of contact.
05
Move In
Walk through your finished dream home and start making memories.
Take the Next Step
Get Details for the Durango Classic
Tell us where you want to build and we'll match you with your local team.
Mortgage Calculator
*Estimate only. Does not include taxes and insurance. WAC.
$
$
%
Estimated Monthly Payment
$2,213/mo
Common Questions
Durango Classic Floor Plan FAQ
Yes. Every Southwest Homes floor plan is a starting point. Work directly with our design team to personalize cabinet finishes, flooring, countertops, fixtures, exterior colors, and structural options. We adapt the Durango Classic to fit your land, your family, and your lifestyle.
No - traditional construction loans require you to pay interest. We work with lenders who offer construction-to-permanent financing that simplifies this - often with $0 down and no payments and no interest until the build is complete. *WAC
Pricing depends on the floor plan, location, lot conditions, and customizations you choose. We provide transparent pricing with no hidden fees. Contact us for a personalized quote based on your specific plan and land.
Every home is different - the time frame changes from permit approval to move-in, depending on the plan size, site conditions, local permitting timelines, and even weather conditions. Your project manager will give you a specific schedule during the planning phase.
We typically serve a 100-mile radius around each of our offices in San Antonio, Corpus Christi, Canton TX, and Springdale AR. If you're unsure whether your land is in our service area, call your nearest office and we'll let you know right away.
Yes. Southwest Homes offers a Bring Your Own Plan option. If you have a design you love, our team can review it and provide pricing to build it on your land. Learn more about Bring Your Own Plan.
Ready to Build the Durango Classic on Your Land?
No construction loan required. Transparent pricing. Free site evaluation. 25+ years and 3,000+ homes built.



