

*Plan may show available options and upgrades. Click to zoom. Scroll to zoom. Drag to pan.
Your Custom Home Floor Plan
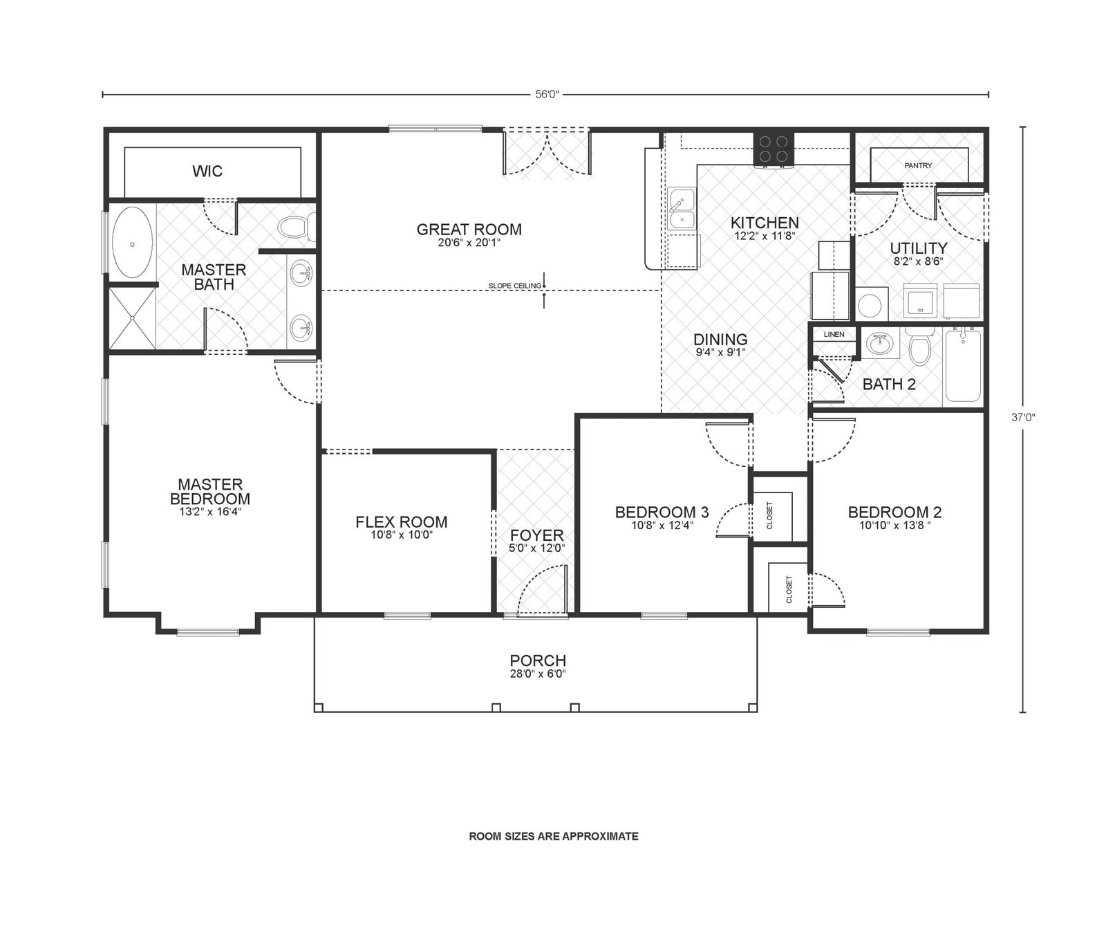
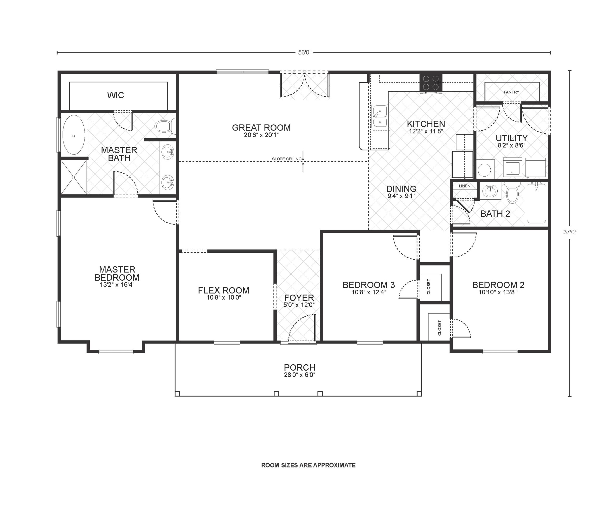
Summerwood Floor Plan
3 Beds
2 Baths
1,755 Sq Ft
$0 Down - No Payments During Construction*
*With approved credit. No traditional construction loan required.
The Summerwood floor plan is a contemporary and spacious design, offering 1755 square feet of comfortable living space. This layout is perfectly suited for modern families or individuals who desire a blend of open-plan living with the privacy of well-defined spaces.
At the heart of the home is an expansive great room, 20’6″ x 20’1″, providing an inviting area for family gatherings, entertainment, and relaxation. The adjoining kitchen is a cook’s dream at 12’2″ x 11’8″, complete with ample counter space, modern appliances, and a pantry for extra storage. The dining area, at 9’4″ x 9’1″, is ideally situated for both casual and formal meals.
The master suite offers a luxurious retreat, featuring a spacious bedroom at 13’2″ x 16’4″, an en suite master bath with a large walk-in closet, ensuring comfort and privacy. Two additional bedrooms, at 10’10” x 13’8″ and 10’8″ x 12’4″, provide ample space for family, guests, or home offices, with a second full bath conveniently located for ease of use.
This floor plan also includes a flex room at 10’8″ x 10’0″, which can be customized to fit the homeowner’s lifestyle, whether as a study, home gym, or additional living space. A utility room near the kitchen adds functionality for household management.
Outdoor living is considered with a sizable porch, extending the living area and offering an enjoyable outdoor space. The total under-roof space of 1923 square feet, including the porch, ensures that there is ample room for both indoor and outdoor activities.
The Summerwood floor plan represents a thoughtful balance of communal areas and private retreats, all within a beautifully designed and practical layout.
Living Area
1,755 sq ft
Bedrooms
3
Bathrooms
2
Stories
1
Speak To Your New Custom Home Builder Today!
25+
Years Experience
3,000+
Homes Built
5
Office Locations
A+
BBB Rating
Make It Yours
Customize the Summerwood
Every floor plan is a starting point, not a box. Work directly with our design team to personalize every detail of the Summerwood to fit your land, your family, and your lifestyle - at a price that's clear from day one.
Cabinet styles and finishes
Flooring throughout
Countertops and backsplashes
Exterior colors and materials
Structural layout changes
Fixtures and hardware
Ceiling treatments
Porch and outdoor living
How It Works
Build the Summerwood in 5 Simple Steps
From free site evaluation to move-in day. One team, one price, one beautiful home.
01
Free Site Evaluation
We assess your land for build-readiness including soil, utilities, and access.
02
Choose Your Plan
Select the Summerwood or customize it. Bring your own plan too.
03
Get Clear Pricing
Transparent pricing with no hidden fees or surprises.
04
Build Begins
Our experienced team breaks ground with one dedicated point of contact.
05
Move In
Walk through your finished dream home and start making memories.
Take the Next Step
Get Details for the Summerwood
Tell us where you want to build and we'll match you with your local team.
Mortgage Calculator
*Estimate only. Does not include taxes and insurance. WAC.
$
$
%
Estimated Monthly Payment
$2,213/mo
Common Questions
Summerwood Floor Plan FAQ
Yes. Every Southwest Homes floor plan is a starting point. Work directly with our design team to personalize cabinet finishes, flooring, countertops, fixtures, exterior colors, and structural options. We adapt the Summerwood to fit your land, your family, and your lifestyle.
No - traditional construction loans require you to pay interest. We work with lenders who offer construction-to-permanent financing that simplifies this - often with $0 down and no payments and no interest until the build is complete. *WAC
Pricing depends on the floor plan, location, lot conditions, and customizations you choose. We provide transparent pricing with no hidden fees. Contact us for a personalized quote based on your specific plan and land.
Every home is different - the time frame changes from permit approval to move-in, depending on the plan size, site conditions, local permitting timelines, and even weather conditions. Your project manager will give you a specific schedule during the planning phase.
We typically serve a 100-mile radius around each of our offices in San Antonio, Corpus Christi, Canton TX, and Springdale AR. If you're unsure whether your land is in our service area, call your nearest office and we'll let you know right away.
Yes. Southwest Homes offers a Bring Your Own Plan option. If you have a design you love, our team can review it and provide pricing to build it on your land. Learn more about Bring Your Own Plan.
Ready to Build the Summerwood on Your Land?
No construction loan required. Transparent pricing. Free site evaluation. 25+ years and 3,000+ homes built.



