

*Plan may show available options and upgrades. Click to zoom. Scroll to zoom. Drag to pan.
Your Custom Home Floor Plan
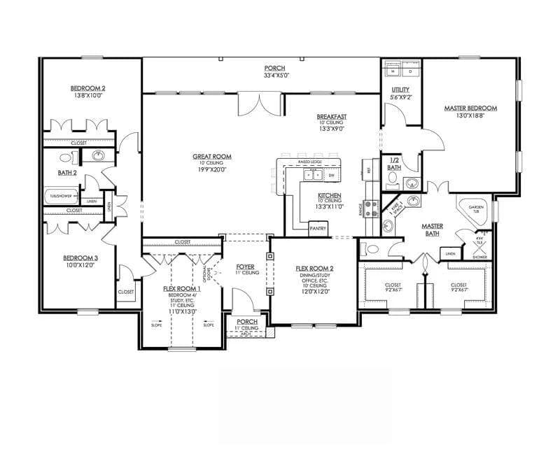
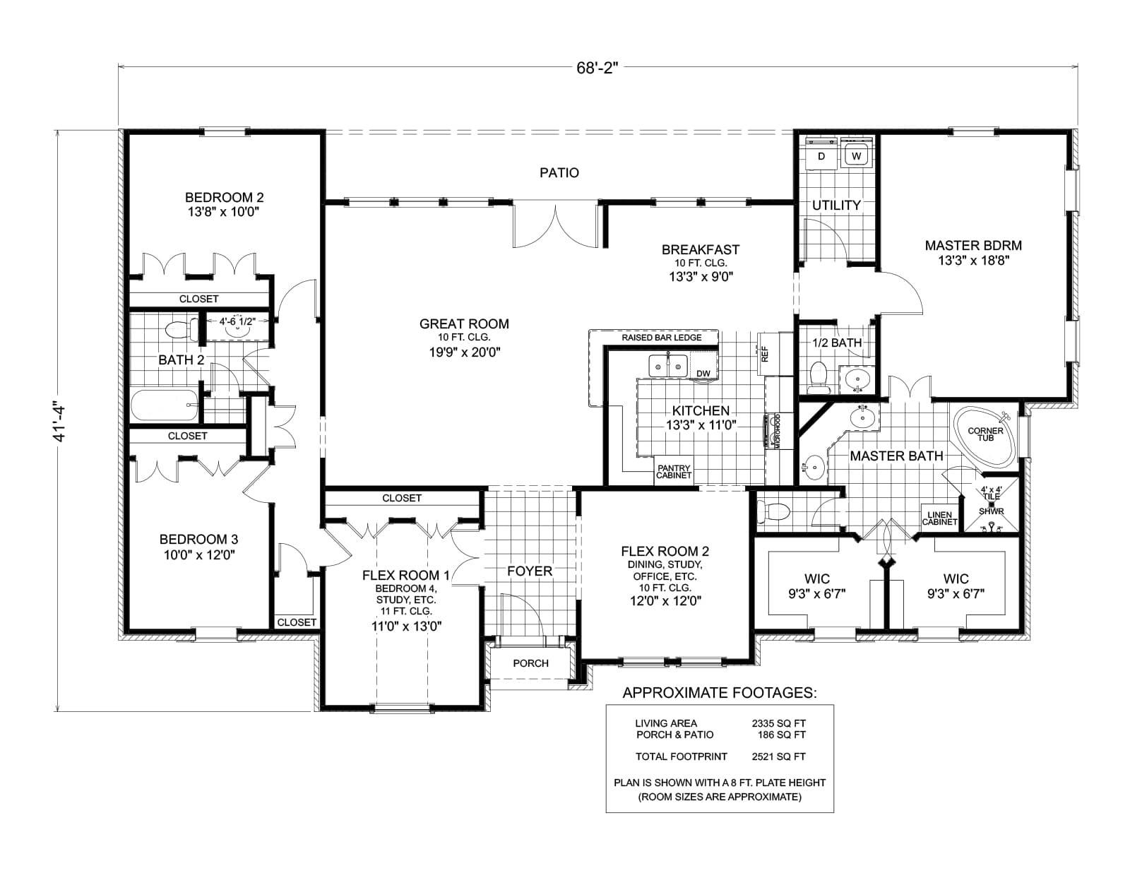
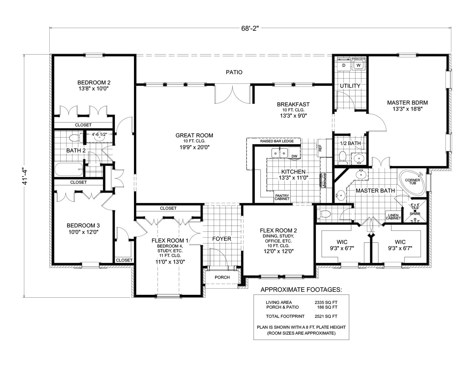
Alexander Floor Plan
3 Beds
2.5 Baths
2,335 Sq Ft
$0 Down - No Payments During Construction*
*With approved credit. No traditional construction loan required.
The Alexander floor plan offers a modern and spacious design, spanning 2335 square feet of living space that combines style, comfort, and versatility. This plan is perfect for a dynamic lifestyle, accommodating a range of activities from casual living to formal entertaining.
The home welcomes you with an inviting foyer that leads into a vast great room with a 10′ ceiling, providing a grand space for relaxation and social gatherings. The open layout flows into the breakfast area and a well-equipped kitchen, featuring a convenient pantry, ideal for the culinary enthusiast.
The master bedroom is a luxurious retreat with an en suite master bath that includes a double vanity, a separate water closet, and a sizable walk-in closet, offering a private sanctuary for relaxation. The utility room is strategically placed for efficiency and ease of use.
Two additional bedrooms provide ample space for family or guests, each with easy access to a full bath. The home’s design also includes two flexible spaces, which can serve as additional bedrooms, a home office, a den, or a playroom, offering the flexibility to tailor the home to your specific needs.
Outdoor living is emphasized with a large porch area, providing an extended space for enjoyment and entertainment. With a total under-roof area of 2521 square feet, including generous porch spaces, the Alexander floor plan ensures a comfortable and stylish living experience, making it an ideal choice for those who appreciate a blend of elegance and practicality in their home.
Living Area
2,335 sq ft
Bedrooms
3
Bathrooms
2.5
Stories
1
Speak To Your New Custom Home Builder Today!
25+
Years Experience
3,000+
Homes Built
5
Office Locations
A+
BBB Rating
Make It Yours
Customize the Alexander
Every floor plan is a starting point, not a box. Work directly with our design team to personalize every detail of the Alexander to fit your land, your family, and your lifestyle - at a price that's clear from day one.
Cabinet styles and finishes
Flooring throughout
Countertops and backsplashes
Exterior colors and materials
Structural layout changes
Fixtures and hardware
Ceiling treatments
Porch and outdoor living
How It Works
Build the Alexander in 5 Simple Steps
From free site evaluation to move-in day. One team, one price, one beautiful home.
01
Free Site Evaluation
We assess your land for build-readiness including soil, utilities, and access.
02
Choose Your Plan
Select the Alexander or customize it. Bring your own plan too.
03
Get Clear Pricing
Transparent pricing with no hidden fees or surprises.
04
Build Begins
Our experienced team breaks ground with one dedicated point of contact.
05
Move In
Walk through your finished dream home and start making memories.
Take the Next Step
Get Details for the Alexander
Tell us where you want to build and we'll match you with your local team.
Mortgage Calculator
*Estimate only. Does not include taxes and insurance. WAC.
$
$
%
Estimated Monthly Payment
$2,213/mo
Common Questions
Alexander Floor Plan FAQ
Yes. Every Southwest Homes floor plan is a starting point. Work directly with our design team to personalize cabinet finishes, flooring, countertops, fixtures, exterior colors, and structural options. We adapt the Alexander to fit your land, your family, and your lifestyle.
No - traditional construction loans require you to pay interest. We work with lenders who offer construction-to-permanent financing that simplifies this - often with $0 down and no payments and no interest until the build is complete. *WAC
Pricing depends on the floor plan, location, lot conditions, and customizations you choose. We provide transparent pricing with no hidden fees. Contact us for a personalized quote based on your specific plan and land.
Every home is different - the time frame changes from permit approval to move-in, depending on the plan size, site conditions, local permitting timelines, and even weather conditions. Your project manager will give you a specific schedule during the planning phase.
We typically serve a 100-mile radius around each of our offices in San Antonio, Corpus Christi, Canton TX, and Springdale AR. If you're unsure whether your land is in our service area, call your nearest office and we'll let you know right away.
Yes. Southwest Homes offers a Bring Your Own Plan option. If you have a design you love, our team can review it and provide pricing to build it on your land. Learn more about Bring Your Own Plan.
Ready to Build the Alexander on Your Land?
No construction loan required. Transparent pricing. Free site evaluation. 25+ years and 3,000+ homes built.


