

*Plan may show available options and upgrades. Click to zoom. Scroll to zoom. Drag to pan.
Your Custom Home Floor Plan
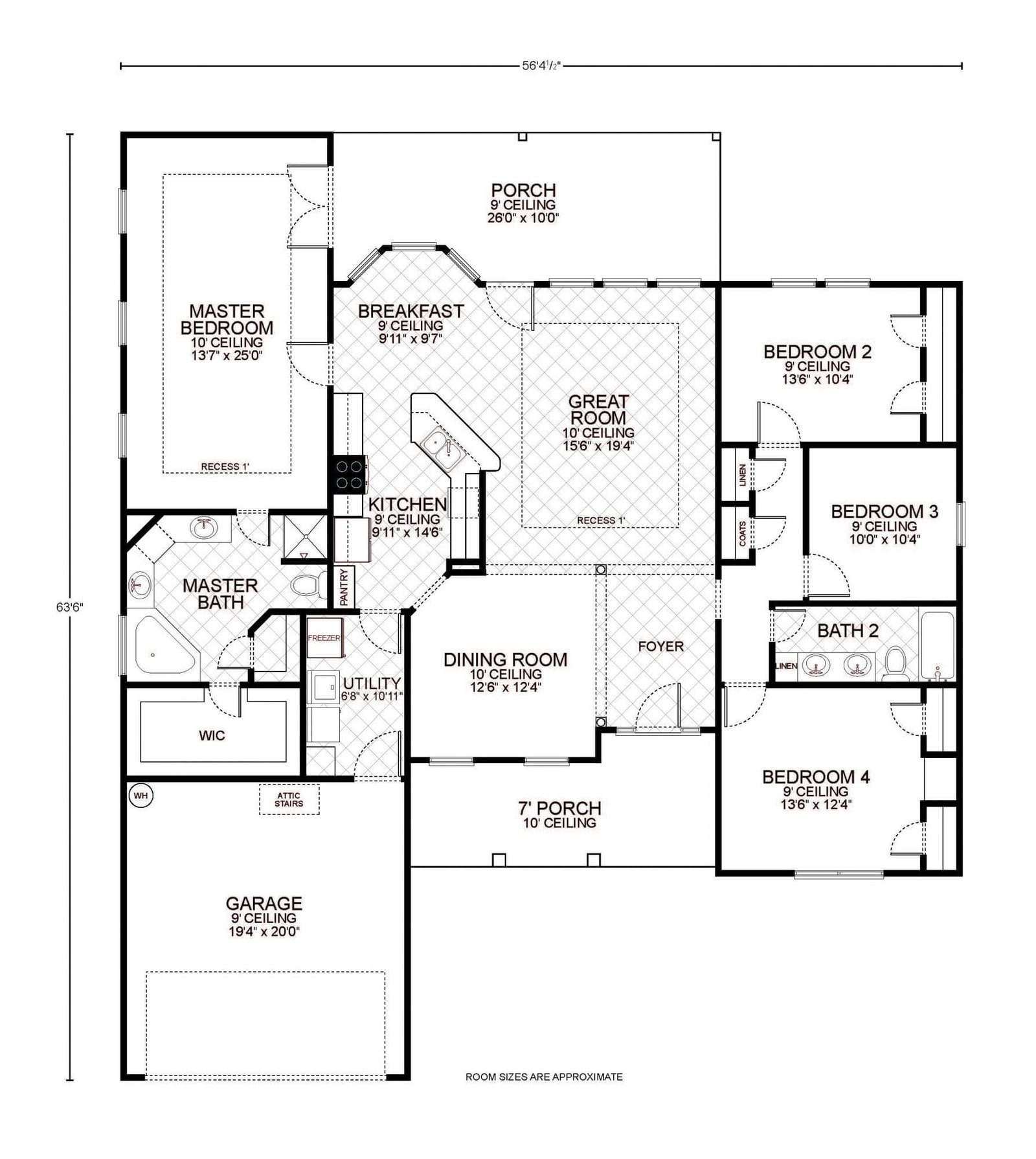
Navasota Floor Plan
4 Beds
2 Baths
2,107 Sq Ft
2 Cars
$0 Down - No Payments During Construction*
*With approved credit. No traditional construction loan required.
Welcome to this beautifully designed floor plan that promises an ideal mix of luxury, comfort, and practicality, covering approximately 2180 square feet of living space. The home’s layout is meticulously planned to facilitate a seamless flow of daily life while providing areas for rest and entertainment.
The majestic master bedroom is a true haven of tranquility, with its generous dimensions and an en suite master bath, complete with modern amenities and a spacious walk-in closet, ensuring privacy and relaxation. The open-concept design connects the great room, with its lofty 10-foot ceiling, to the kitchen and breakfast area, creating an airy and inviting atmosphere for family gatherings and social events.
The kitchen, with a 9-foot ceiling, is designed to be both beautiful and functional, featuring plenty of counter space for meal prep and casual dining. The adjacent breakfast nook provides a cozy spot for morning meals, leading out to a charming porch perfect for enjoying the outdoors.
Formal meals can be enjoyed in the elegant dining room, which boasts a 10-foot ceiling, providing a sophisticated ambiance. Three additional bedrooms, each with 9-foot ceilings, offer ample space for family and guests, accompanied by a full second bathroom for convenience.
The home also includes a practical utility room, a welcoming foyer, and a sizable two-car garage with a 9-foot ceiling. The inclusion of both a front porch and a back porch adds to the home’s charm, giving you multiple outdoor spaces to enjoy. With a total under-roof area of 2898 square feet, this home blends functionality with elegance, making it a perfect choice for those seeking a stylish yet comfortable living environment.
Living Area
2,107 sq ft
Bedrooms
4
Bathrooms
2
Stories
1
Cars
2
Speak To Your New Custom Home Builder Today!
25+
Years Experience
3,000+
Homes Built
5
Office Locations
A+
BBB Rating
Make It Yours
Customize the Navasota
Every floor plan is a starting point, not a box. Work directly with our design team to personalize every detail of the Navasota to fit your land, your family, and your lifestyle - at a price that's clear from day one.
Cabinet styles and finishes
Flooring throughout
Countertops and backsplashes
Exterior colors and materials
Structural layout changes
Fixtures and hardware
Ceiling treatments
Porch and outdoor living
How It Works
Build the Navasota in 5 Simple Steps
From free site evaluation to move-in day. One team, one price, one beautiful home.
01
Free Site Evaluation
We assess your land for build-readiness including soil, utilities, and access.
02
Choose Your Plan
Select the Navasota or customize it. Bring your own plan too.
03
Get Clear Pricing
Transparent pricing with no hidden fees or surprises.
04
Build Begins
Our experienced team breaks ground with one dedicated point of contact.
05
Move In
Walk through your finished dream home and start making memories.
Take the Next Step
Get Details for the Navasota
Tell us where you want to build and we'll match you with your local team.
Mortgage Calculator
*Estimate only. Does not include taxes and insurance. WAC.
$
$
%
Estimated Monthly Payment
$2,213/mo
Common Questions
Navasota Floor Plan FAQ
Yes. Every Southwest Homes floor plan is a starting point. Work directly with our design team to personalize cabinet finishes, flooring, countertops, fixtures, exterior colors, and structural options. We adapt the Navasota to fit your land, your family, and your lifestyle.
No - traditional construction loans require you to pay interest. We work with lenders who offer construction-to-permanent financing that simplifies this - often with $0 down and no payments and no interest until the build is complete. *WAC
Pricing depends on the floor plan, location, lot conditions, and customizations you choose. We provide transparent pricing with no hidden fees. Contact us for a personalized quote based on your specific plan and land.
Every home is different - the time frame changes from permit approval to move-in, depending on the plan size, site conditions, local permitting timelines, and even weather conditions. Your project manager will give you a specific schedule during the planning phase.
We typically serve a 100-mile radius around each of our offices in San Antonio, Corpus Christi, Canton TX, and Springdale AR. If you're unsure whether your land is in our service area, call your nearest office and we'll let you know right away.
Yes. Southwest Homes offers a Bring Your Own Plan option. If you have a design you love, our team can review it and provide pricing to build it on your land. Learn more about Bring Your Own Plan.
Ready to Build the Navasota on Your Land?
No construction loan required. Transparent pricing. Free site evaluation. 25+ years and 3,000+ homes built.



