

*Plan may show available options and upgrades. Click to zoom. Scroll to zoom. Drag to pan.
Your Custom Home Floor Plan
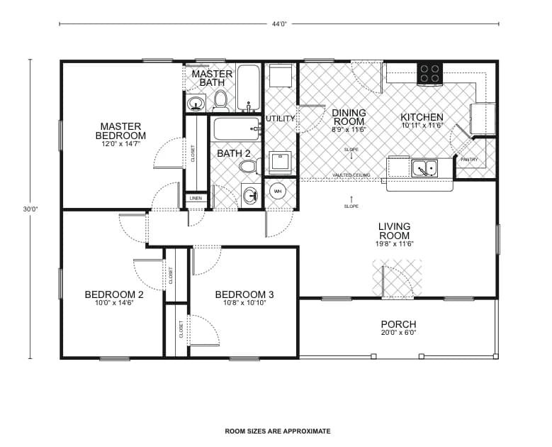
Homestead Floor Plan
3 Beds
2 Baths
1,200 Sq Ft
$0 Down - No Payments During Construction*
*With approved credit. No traditional construction loan required.
Welcome to the Homestead, a charming floor plan offering a cozy yet spacious layout, perfect for those looking to build a personalized custom home. This design smartly utilizes its 1200 sq. ft. living area to create an inviting atmosphere that feels both intimate and open.
Upon entering, you are welcomed into a generous living room, bathed in natural light, with plenty of space for family activities and entertaining guests. The vaulted ceiling adds a touch of grandeur and a feeling of expanded space, enhancing the room’s welcoming ambiance.
The adjacent dining room is conveniently situated next to the kitchen, making meal service a breeze. The kitchen, featuring modern amenities and a dedicated pantry, is designed for efficiency and ease, allowing the family chef to prepare meals while still being part of the conversation in the living and dining areas.
The master suite is a comfortable retreat, complete with a sizable bedroom, a private master bath, and ample closet space, ensuring a peaceful and private space to unwind.
Two additional bedrooms offer versatility, whether used as children’s rooms, guest rooms, or a home office, each located conveniently near the second full bathroom.
A practical utility room serves as an excellent space for laundry and additional storage, contributing to the home’s overall functionality.
The highlight of this plan is the inviting front porch, spanning 20′ x 6′, which provides a picturesque setting for enjoying the outdoors and extending the living space in a way that embraces the surrounding landscape.
With a total under-roof area of 1320 sq. ft., the Homestead floor plan is a delightful option for those seeking a balance of comfort, practicality, and the simple pleasures of home.
Living Area
1,200 sq ft
Bedrooms
3
Bathrooms
2
Stories
1
Speak To Your New Custom Home Builder Today!
25+
Years Experience
3,000+
Homes Built
5
Office Locations
A+
BBB Rating
Make It Yours
Customize the Homestead
Every floor plan is a starting point, not a box. Work directly with our design team to personalize every detail of the Homestead to fit your land, your family, and your lifestyle - at a price that's clear from day one.
Cabinet styles and finishes
Flooring throughout
Countertops and backsplashes
Exterior colors and materials
Structural layout changes
Fixtures and hardware
Ceiling treatments
Porch and outdoor living
How It Works
Build the Homestead in 5 Simple Steps
From free site evaluation to move-in day. One team, one price, one beautiful home.
01
Free Site Evaluation
We assess your land for build-readiness including soil, utilities, and access.
02
Choose Your Plan
Select the Homestead or customize it. Bring your own plan too.
03
Get Clear Pricing
Transparent pricing with no hidden fees or surprises.
04
Build Begins
Our experienced team breaks ground with one dedicated point of contact.
05
Move In
Walk through your finished dream home and start making memories.
Take the Next Step
Get Details for the Homestead
Tell us where you want to build and we'll match you with your local team.
Mortgage Calculator
*Estimate only. Does not include taxes and insurance. WAC.
$
$
%
Estimated Monthly Payment
$2,213/mo
Common Questions
Homestead Floor Plan FAQ
Yes. Every Southwest Homes floor plan is a starting point. Work directly with our design team to personalize cabinet finishes, flooring, countertops, fixtures, exterior colors, and structural options. We adapt the Homestead to fit your land, your family, and your lifestyle.
No - traditional construction loans require you to pay interest. We work with lenders who offer construction-to-permanent financing that simplifies this - often with $0 down and no payments and no interest until the build is complete. *WAC
Pricing depends on the floor plan, location, lot conditions, and customizations you choose. We provide transparent pricing with no hidden fees. Contact us for a personalized quote based on your specific plan and land.
Every home is different - the time frame changes from permit approval to move-in, depending on the plan size, site conditions, local permitting timelines, and even weather conditions. Your project manager will give you a specific schedule during the planning phase.
We typically serve a 100-mile radius around each of our offices in San Antonio, Corpus Christi, Canton TX, and Springdale AR. If you're unsure whether your land is in our service area, call your nearest office and we'll let you know right away.
Yes. Southwest Homes offers a Bring Your Own Plan option. If you have a design you love, our team can review it and provide pricing to build it on your land. Learn more about Bring Your Own Plan.
Ready to Build the Homestead on Your Land?
No construction loan required. Transparent pricing. Free site evaluation. 25+ years and 3,000+ homes built.



