

*Plan may show available options and upgrades. Click to zoom. Scroll to zoom. Drag to pan.
Your Custom Home Floor Plan
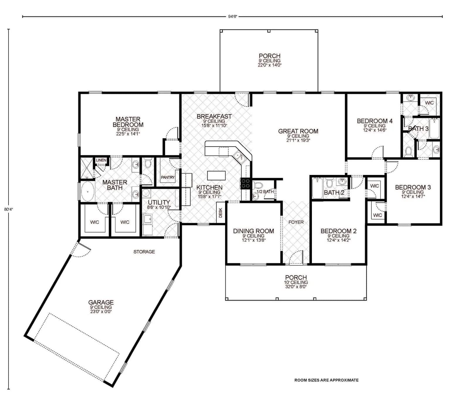
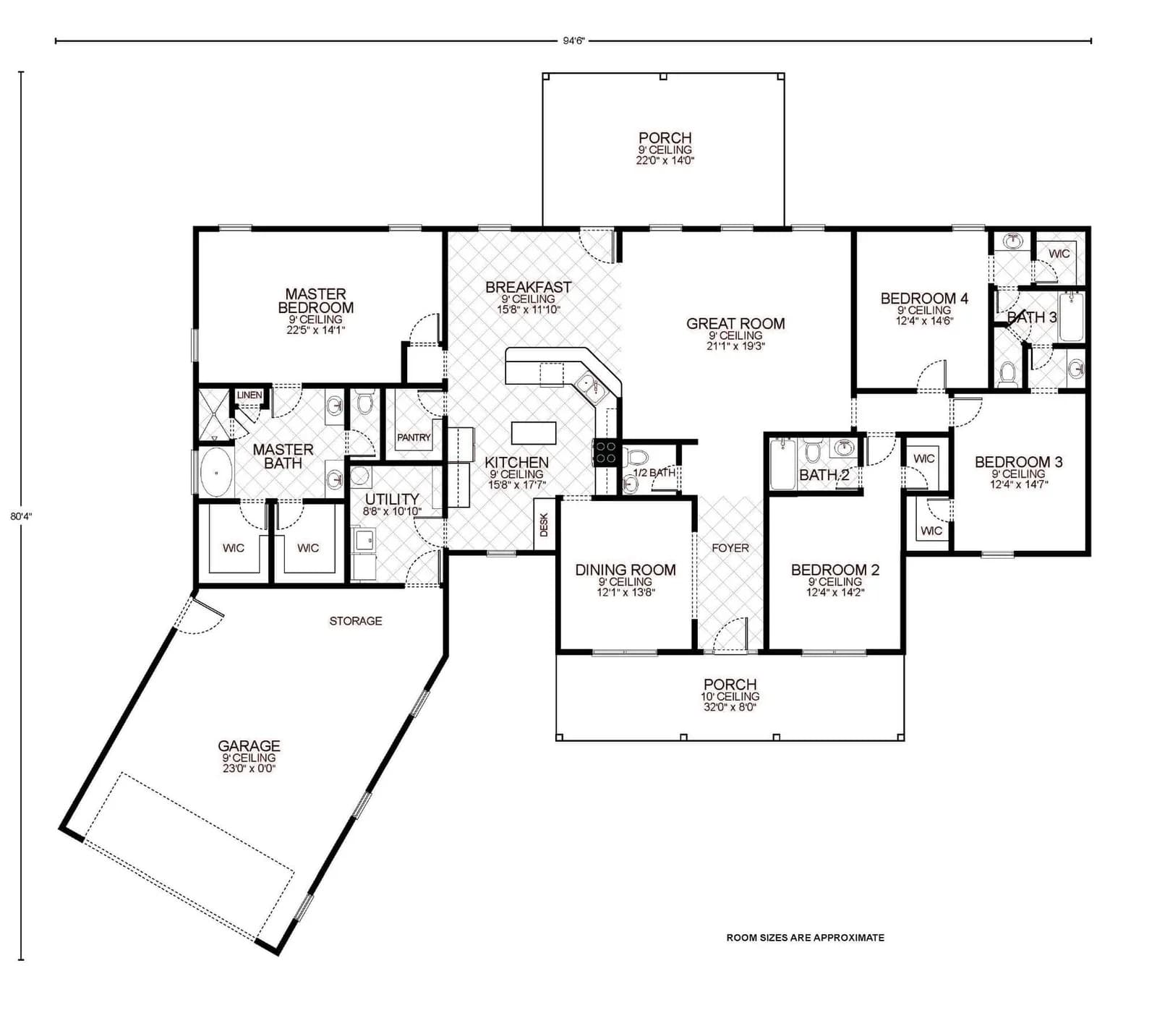
Adelaide Floor Plan
4 Beds
3.5 Baths
2,816 Sq Ft
2 Cars
$0 Down - No Payments During Construction*
*With approved credit. No traditional construction loan required.
This exquisite floor plan presents an inviting design that balances open spaces with private retreats, perfect for those looking to build a custom home that’s both luxurious and practical. The heart of the home is the spacious great room with soaring ceilings, providing the ideal backdrop for entertaining or relaxing family time.
The adjacent chef’s kitchen, featuring an expansive island and walk-in pantry, flows seamlessly into a charming breakfast nook, creating a warm space for morning coffee and casual dining. The formal dining room nearby offers a perfect setting for hosting dinner parties or enjoying family meals.
The master suite is a true sanctuary, boasting a generous bedroom with ample space for a king-size bed and sitting area, a spa-like master bath with dual vanities, a soaking tub, a separate shower, and a vast walk-in closet. Across the home, three additional bedrooms each feature their own walk-in closets and share two well-appointed full baths.
Additional features include a large utility room with plenty of storage, a welcoming foyer that makes a grand first impression, and a trio of porches—including a serene back porch—perfect for outdoor living and soaking in the surroundings of your custom home. The attached garage also provides ample space for vehicles and hobbies.
This floor plan offers approximately 2,816 square feet of living area, a 723 square foot garage, and porches totaling 564 square feet, culminating in a home that’s as spacious as it is sophisticated. With every detail thoughtfully considered, this layout is ready to be transformed into your dream residence.
Living Area
2,816 sq ft
Bedrooms
4
Bathrooms
3.5
Stories
1
Cars
2
Speak To Your New Custom Home Builder Today!
25+
Years Experience
3,000+
Homes Built
5
Office Locations
A+
BBB Rating
Make It Yours
Customize the Adelaide
Every floor plan is a starting point, not a box. Work directly with our design team to personalize every detail of the Adelaide to fit your land, your family, and your lifestyle - at a price that's clear from day one.
Cabinet styles and finishes
Flooring throughout
Countertops and backsplashes
Exterior colors and materials
Structural layout changes
Fixtures and hardware
Ceiling treatments
Porch and outdoor living
How It Works
Build the Adelaide in 5 Simple Steps
From free site evaluation to move-in day. One team, one price, one beautiful home.
01
Free Site Evaluation
We assess your land for build-readiness including soil, utilities, and access.
02
Choose Your Plan
Select the Adelaide or customize it. Bring your own plan too.
03
Get Clear Pricing
Transparent pricing with no hidden fees or surprises.
04
Build Begins
Our experienced team breaks ground with one dedicated point of contact.
05
Move In
Walk through your finished dream home and start making memories.
Take the Next Step
Get Details for the Adelaide
Tell us where you want to build and we'll match you with your local team.
Mortgage Calculator
*Estimate only. Does not include taxes and insurance. WAC.
$
$
%
Estimated Monthly Payment
$2,213/mo
Common Questions
Adelaide Floor Plan FAQ
Yes. Every Southwest Homes floor plan is a starting point. Work directly with our design team to personalize cabinet finishes, flooring, countertops, fixtures, exterior colors, and structural options. We adapt the Adelaide to fit your land, your family, and your lifestyle.
No - traditional construction loans require you to pay interest. We work with lenders who offer construction-to-permanent financing that simplifies this - often with $0 down and no payments and no interest until the build is complete. *WAC
Pricing depends on the floor plan, location, lot conditions, and customizations you choose. We provide transparent pricing with no hidden fees. Contact us for a personalized quote based on your specific plan and land.
Every home is different - the time frame changes from permit approval to move-in, depending on the plan size, site conditions, local permitting timelines, and even weather conditions. Your project manager will give you a specific schedule during the planning phase.
We typically serve a 100-mile radius around each of our offices in San Antonio, Corpus Christi, Canton TX, and Springdale AR. If you're unsure whether your land is in our service area, call your nearest office and we'll let you know right away.
Yes. Southwest Homes offers a Bring Your Own Plan option. If you have a design you love, our team can review it and provide pricing to build it on your land. Learn more about Bring Your Own Plan.
Ready to Build the Adelaide on Your Land?
No construction loan required. Transparent pricing. Free site evaluation. 25+ years and 3,000+ homes built.



