
Durango Classic
4 Bed 2 Bath 1,632 sqft
View Plan

*Plan may show available options and upgrades. Click to zoom. Scroll to zoom. Drag to pan.
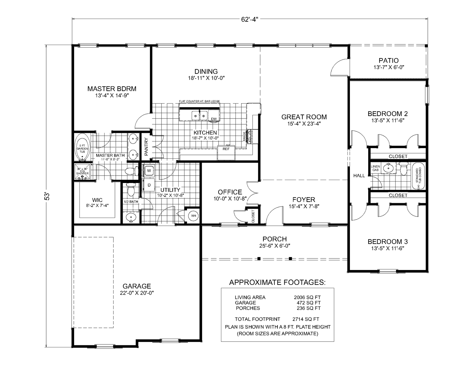
This inviting floor plan offers a well-balanced design that blends open living spaces with thoughtfully placed private areas, making it an ideal choice for a custom home that prioritizes comfort, functionality, and everyday livability. The spacious great room serves as the heart of the home, providing an open and airy environment that is perfect for entertaining guests or enjoying relaxed family time.
The kitchen is designed with both form and function in mind, featuring ample counter space, an efficient layout, and a seamless connection to the adjacent dining area. This cohesive flow creates an ideal setting for casual meals, gatherings, and daily routines, while keeping the kitchen connected to the main living space. Nearby, the dining area offers flexibility for hosting family dinners or more formal occasions.
The master suite is a private retreat, offering a generously sized bedroom, a large walk-in closet, and a well-appointed master bath complete with dual vanities, a soaking tub, and a separate shower. Located away from the main living areas, the additional bedrooms provide privacy and comfort, each featuring generous closet space and convenient access to shared full bathrooms.
Additional highlights include a dedicated home office ideal for remote work or study, a centrally located utility room with ample storage, and a welcoming foyer that creates a strong first impression upon entry. Outdoor living is enhanced by covered front and rear porches, offering peaceful spaces to relax and enjoy the surrounding views. The attached garage provides ample room for vehicles, storage, and hobbies.
With approximately 2,006 square feet of living space, a spacious garage, and multiple covered porches, this floor plan delivers a thoughtful layout that maximizes usability without sacrificing style. Every detail has been carefully considered, making the Ferndale Floor Plan a perfect foundation for a custom home tailored to your lifestyle.
Every floor plan is a starting point, not a box. Work directly with our design team to personalize every detail of the Ferndale to fit your land, your family, and your lifestyle - at a price that's clear from day one.
From free site evaluation to move-in day. One team, one price, one beautiful home.
We assess your land for build-readiness including soil, utilities, and access.
Select the Ferndale or customize it. Bring your own plan too.
Transparent pricing with no hidden fees or surprises.
Our experienced team breaks ground with one dedicated point of contact.
Walk through your finished dream home and start making memories.
Tell us where you want to build and we'll match you with your local team.
*Estimate only. Does not include taxes and insurance. WAC.
No construction loan required. Transparent pricing. Free site evaluation. 25+ years and 3,000+ homes built.
Fill out the form below and your local builder rep will send you full pricing and specs.