
San Marcos C
4 Bed 2 Bath 1,360 sqft
View Plan

*Plan may show available options and upgrades. Click to zoom. Scroll to zoom. Drag to pan.
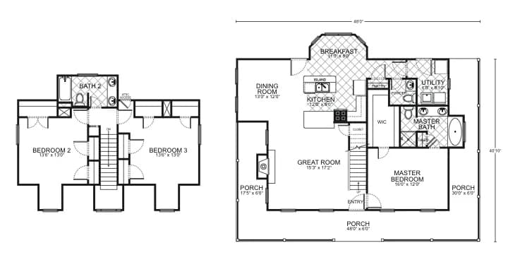
Envision your life in this masterfully designed floor plan, ideal for those who value both charm and functionality in their custom-built home. Spanning a total under-roof area of 2640 sq. ft., this plan cleverly utilizes space to create a warm and inviting atmosphere.
Upon entry, you are greeted by a spacious great room, measuring 15’8″ x 17’2″, which serves as the heart of the home, where family and friends can gather. The great room opens up to a dining room, ensuring meals are enjoyed in a designated yet open space, enhancing the home’s social flow.
The kitchen, equipped with modern amenities and an adjoining breakfast area, is thoughtfully laid out to inspire culinary creativity while facilitating easy everyday dining. It also connects to a utility room, adding to the convenience with additional storage options.
The master suite is a sanctuary designed for relaxation, featuring a large bedroom with a sizeable porch for private outdoor access, a walk-in closet, and a master bath designed for comfort and ease.
Two additional bedrooms are situated on the second floor, each generously sized and conveniently located near the second full bathroom, offering privacy and comfort for family or guests. These rooms are versatile and can be adapted to any lifestyle, whether for sleeping, office work, or hobbies.
The wraparound porch is a signature feature of this home, providing ample space for outdoor leisure and entertainment, enhancing the indoor-outdoor living experience.
This floor plan represents an opportunity to craft a home that’s as practical as it is picturesque, perfect for those looking to create a space that’s truly their own.
Every floor plan is a starting point, not a box. Work directly with our design team to personalize every detail of the Dallas to fit your land, your family, and your lifestyle - at a price that's clear from day one.
From free site evaluation to move-in day. One team, one price, one beautiful home.
We assess your land for build-readiness including soil, utilities, and access.
Select the Dallas or customize it. Bring your own plan too.
Transparent pricing with no hidden fees or surprises.
Our experienced team breaks ground with one dedicated point of contact.
Walk through your finished dream home and start making memories.
Tell us where you want to build and we'll match you with your local team.
*Estimate only. Does not include taxes and insurance. WAC.
No construction loan required. Transparent pricing. Free site evaluation. 25+ years and 3,000+ homes built.
Fill out the form below and your local builder rep will send you full pricing and specs.